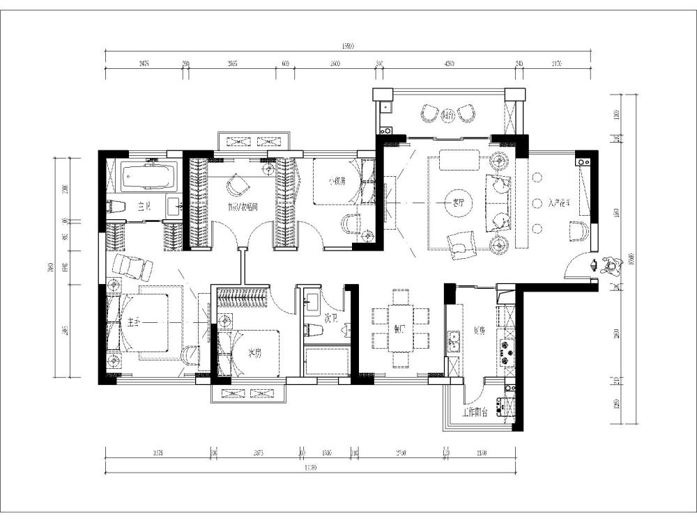
求大神指点指点!这个平面方案还有更好的吗?
[size=15.454545021057129px]刚买的房子,于是自己出了一个平面方案!
[size=15.454545021057129px]这个户型自己觉得有两个问题:
[size=15.454545021057129px]一、卫生间门对着床(这个自己觉得问题不是特别大);
[size=15.454545021057129px]二、入户大门直对主卧门(这个问题蛮严重);
[size=15.454545021057129px]我重点解决第二个问题,就把原主卧的门口封掉,并且往前推,解决入户门直对主卧门的问题,且使得过道进深缩短。
[size=15.454545021057129px]但是由此带来的问题就是主卧门口就只能通过上下两个卧室进入,所以就把平面上方的卧室做成书房,连同主卧。
[size=15.454545021057129px]现在就想请教大神们,觉得这样的改动是否合理?
[size=15.454545021057129px]还有什么方法解决呢?

AI文本分析中……
AI色彩命名中……

序赞Ai时刻等待着你的命令!~

与Ai对话形式持续执行相关Ai智能体任务。

您需要登录后才可以回帖 登录 | 注册序赞号

快速回复 返回顶部 返回列表