
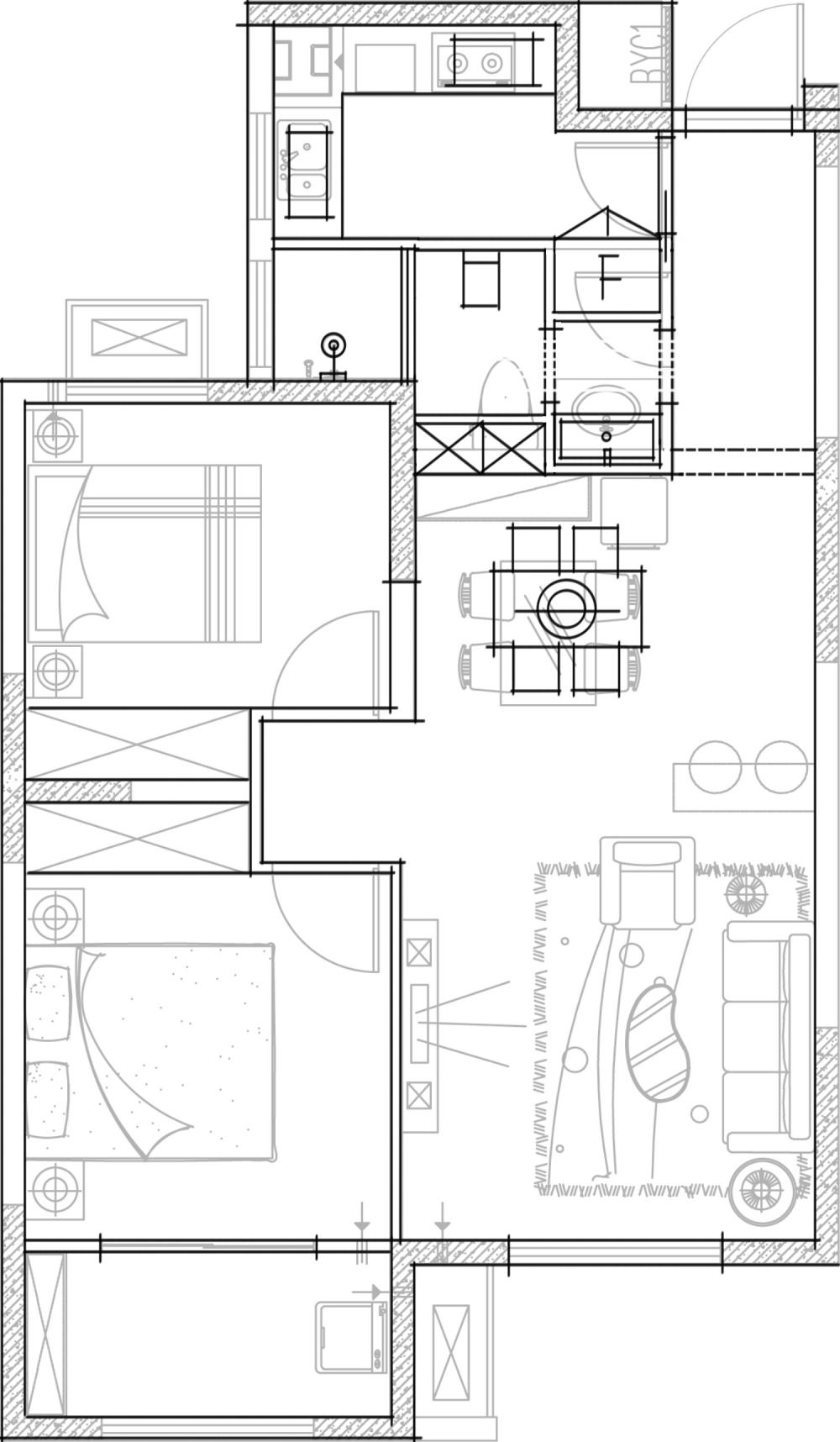
- 平面规划
- >
- 住宅
- >
- 哪位大师帮忙优化一下方案
- 2015-11-15
- 2139
- 0
- 0
| |
AI文本分析中……
AI色彩命名中……
序赞Ai时刻等待着你的命令!~
与Ai对话形式持续执行相关Ai智能体任务。
Respiration.2015-11-16 10:16:40
| ||
只吃二碗饭2015-11-27 12:06:13
| ||
只吃二碗饭2015-11-27 12:07:32
| |
182721606262015-12-13 16:19:47
| ||
182721606262015-12-13 16:20:58
| ||
嘻嘻嘻嘻哈2015-12-24 17:21:17
| ||
浏览过的版块 |




