如何使主卧室的套房更有效果?

一楼原始

一楼原始

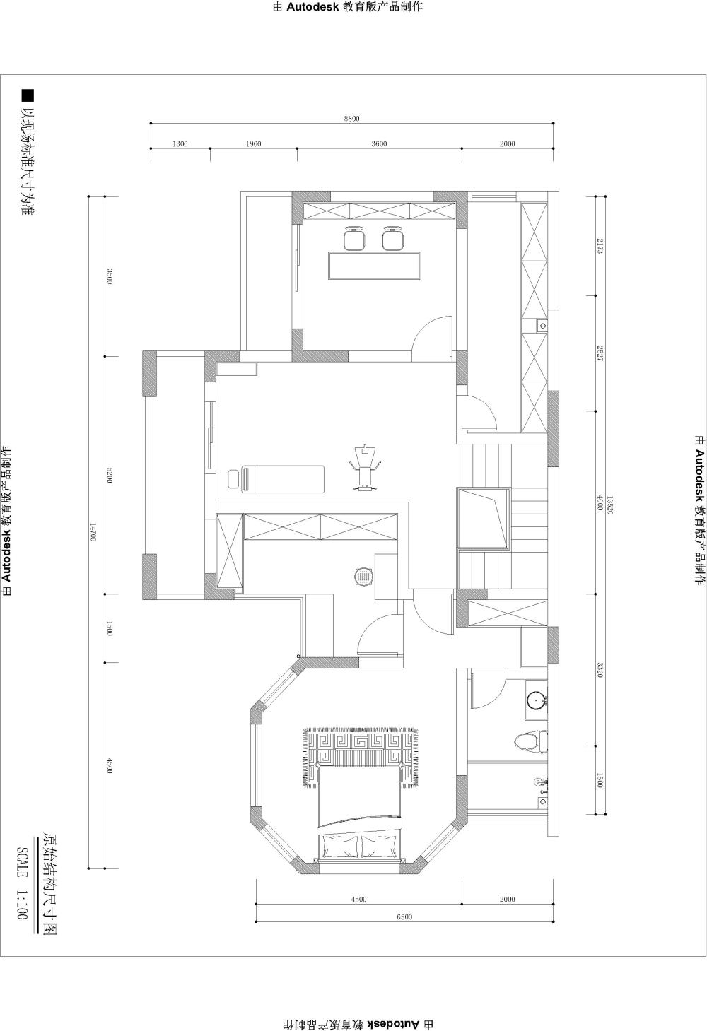
二楼原始

如何使主卧室的套房更有效果?_二楼原始

一楼平面

如何使主卧室的套房更有效果?_一楼平面

二楼平面

如何使主卧室的套房更有效果?_二楼平面
AI文本分析中……
AI色彩命名中……

序赞Ai时刻等待着你的命令!~

与Ai对话形式持续执行相关Ai智能体任务。

您需要登录后才可以回帖 登录 | 注册序赞号

快速回复 返回顶部 返回列表