
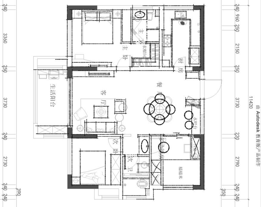
- 平面规划
- >
- 住宅
- >
- 大神们帮我看看这个方案怎么改进谢谢了
- 2015-12-26
- 1710
- 0
- 0
| |
AI文本分析中……
AI色彩命名中……
序赞Ai时刻等待着你的命令!~
与Ai对话形式持续执行相关Ai智能体任务。
223378778@qq.co2015-12-26 12:42:19
| ||
zhoujian07472015-12-27 10:33:05
| ||

| |
序赞Ai时刻等待着你的命令!~
与Ai对话形式持续执行相关Ai智能体任务。
223378778@qq.co2015-12-26 12:42:19
| ||
zhoujian07472015-12-27 10:33:05
| ||
