
- 平面规划
- >
- 住宅
- >
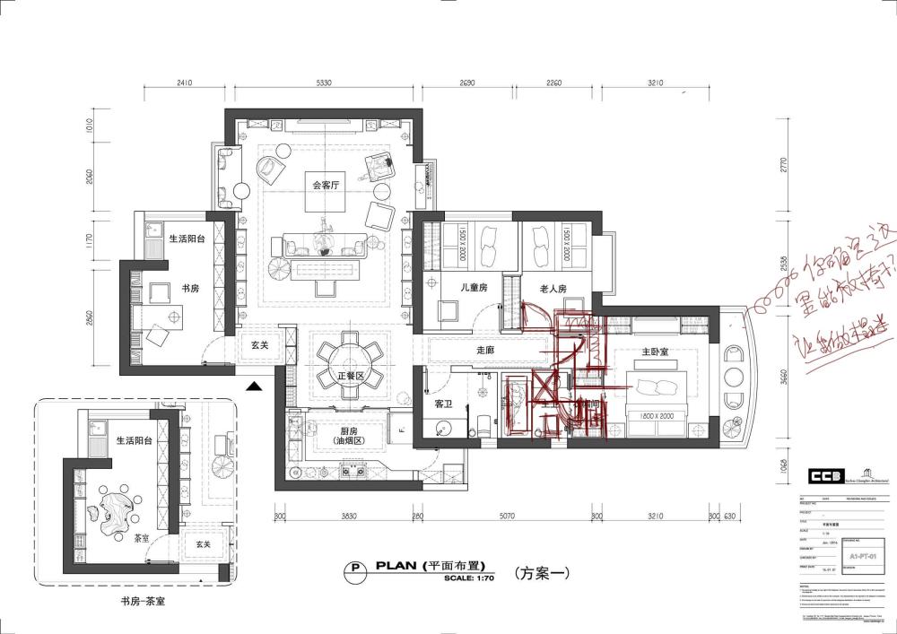
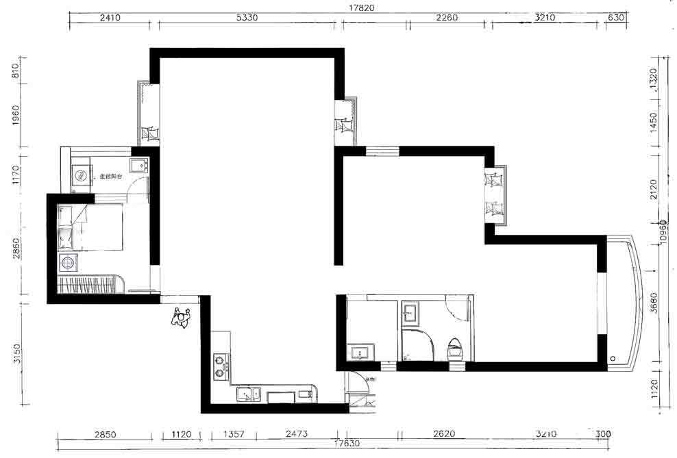
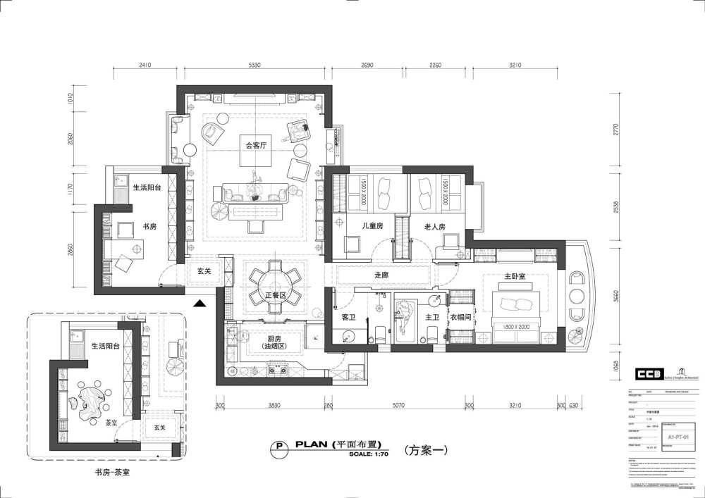
- 一个深圳住宅平面户型的几种思路方案
- 2016-01-07
- 2960
- 1
- 4
| |
AI文本分析中……
AI色彩命名中……
序赞Ai时刻等待着你的命令!~
与Ai对话形式持续执行相关Ai智能体任务。
90lhx2016-1-7 17:09:53
| ||
12918073082016-1-7 17:44:38
| ||
hello_world2016-1-8 11:44:25
| ||
12918073082016-1-8 14:05:12
| ||

| |
序赞Ai时刻等待着你的命令!~
与Ai对话形式持续执行相关Ai智能体任务。
90lhx2016-1-7 17:09:53
| ||
12918073082016-1-7 17:44:38
| ||
hello_world2016-1-8 11:44:25
| ||
12918073082016-1-8 14:05:12
| ||
