不知道怎么改了,求大神看看怎么优化下.
本帖最后由 bbkue 于 2016-3-10 11:31 编辑

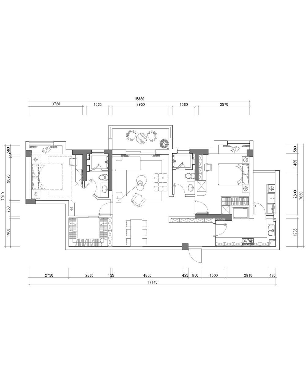
要求


主卧次卧全部是一米八的床,三口之家,男孩8岁.主卧要求有衣帽间,书房功能.
客厅不要求有电视,和小孩玩的空间大.
洗衣机晾晒放设备阳台.
全房储物性强大.
走台式

户型全朝南


不知道怎么改了,求大神看看怎么优化下._QQ图片20160310111617.png
不知道怎么改了,求大神看看怎么优化下._QQ图片20160310111612.png
平面优化.dwg
166.29 KB,下载次数:28
AI文本分析中……
AI色彩命名中……

序赞Ai时刻等待着你的命令!~

与Ai对话形式持续执行相关Ai智能体任务。

您需要登录后才可以回帖 登录 | 注册序赞号

快速回复 返回顶部 返回列表