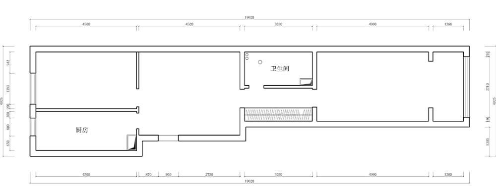
长户型又不会了,三代人居住。
薄墙都可以拆
长户型又不会了,三代人居住。_[RQDP0P6YP]JTP`U%0L`]9J.png
AI文本分析中……
AI色彩命名中……

序赞Ai时刻等待着你的命令!~

与Ai对话形式持续执行相关Ai智能体任务。

您需要登录后才可以回帖 登录 | 注册序赞号

快速回复 返回顶部 返回列表