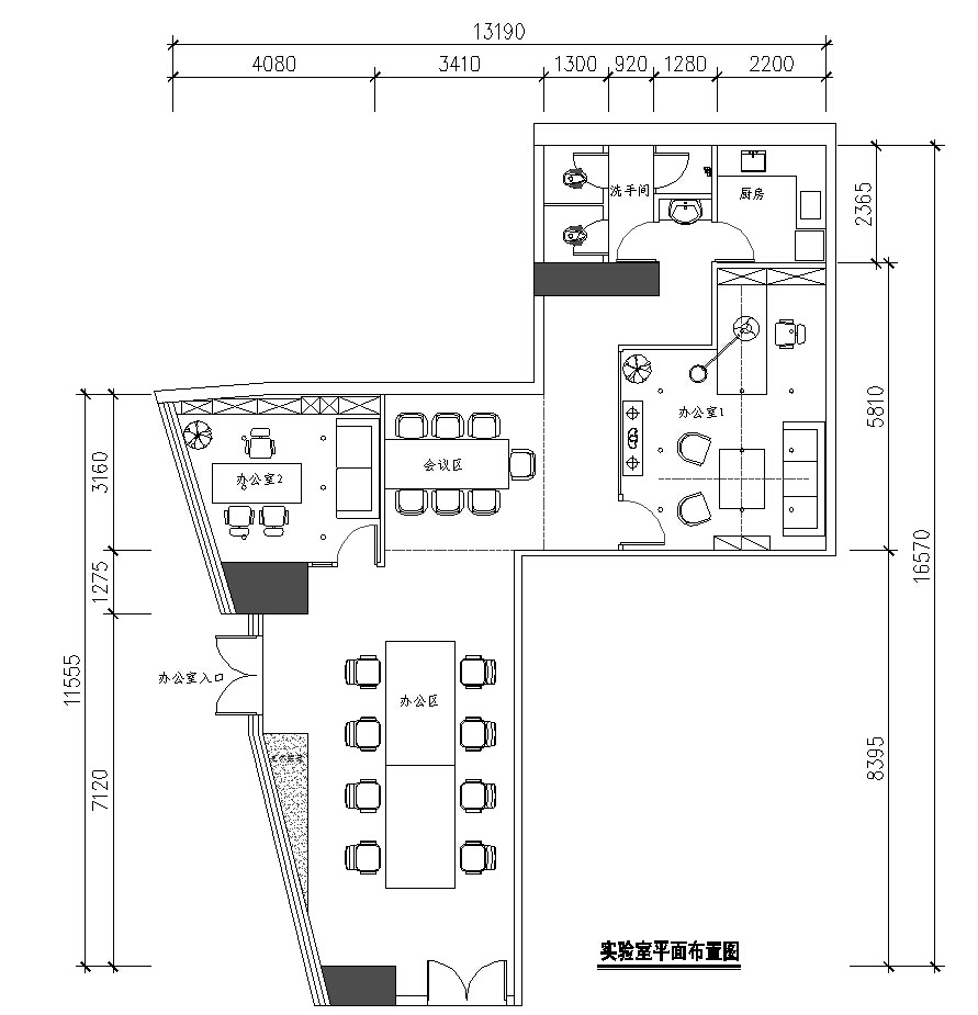
一个特别有意思的原始平面图,求方案。
求方案,求指点。
一个特别有意思的原始平面图,求方案。_QQ截图20160323190323.jpg
AI文本分析中……
AI色彩命名中……

序赞Ai时刻等待着你的命令!~

与Ai对话形式持续执行相关Ai智能体任务。

您需要登录后才可以回帖 登录 | 注册序赞号

快速回复 返回顶部 返回列表