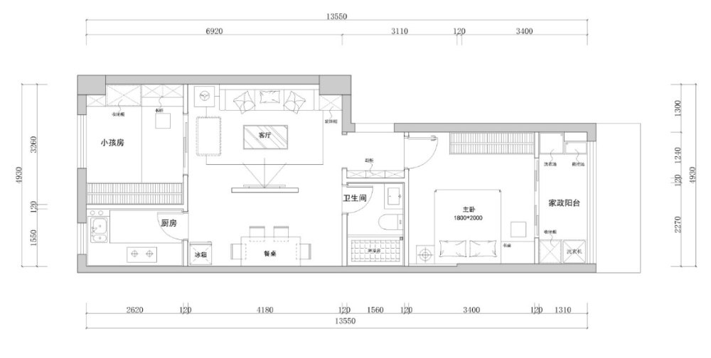
66平3口之家房子在一楼无排烟管道无煤气管道求指导优化
本帖最后由 郑一帆 于 2016-3-27 11:50 编辑

原始框架.png

一

二
AI文本分析中……
AI色彩命名中……

序赞Ai时刻等待着你的命令!~

与Ai对话形式持续执行相关Ai智能体任务。

您需要登录后才可以回帖 登录 | 注册序赞号

快速回复 返回顶部 返回列表