新人求助。
能敲掉的墙太少,卫生间下水不能改,客户一家五口,都考虑卧室,有没有更好的方案了,苦逼的实习助理求助。

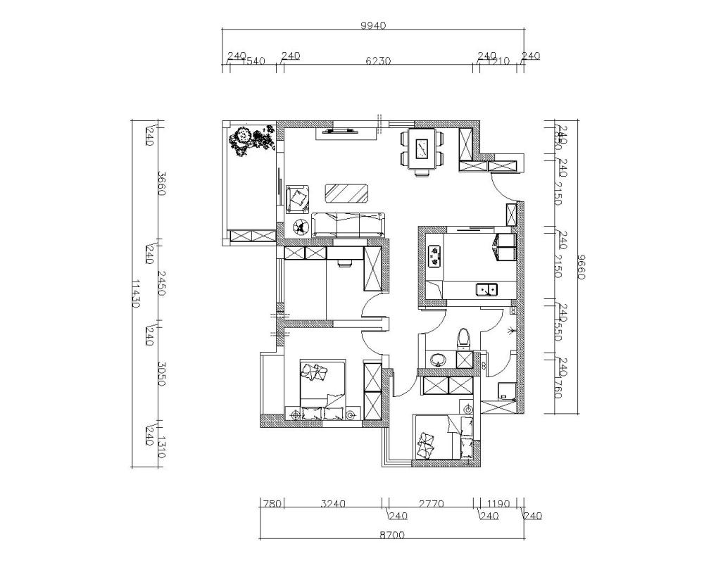
原始结构图

新人求助。_原始结构图

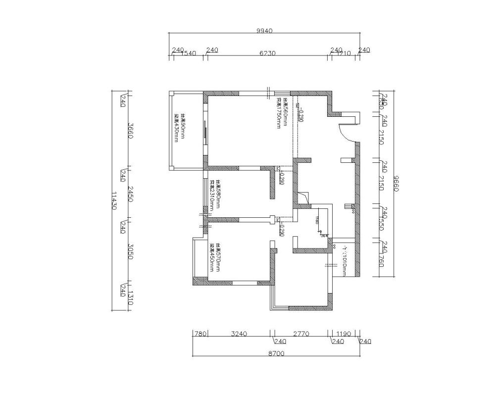
改过之后的平面

新人求助。_改过之后的平面
AI文本分析中……
AI色彩命名中……

序赞Ai时刻等待着你的命令!~

与Ai对话形式持续执行相关Ai智能体任务。

暂时没有评论,你回一个呗!~

您需要登录后才可以回帖 登录 | 注册序赞号

快速回复 返回顶部 返回列表