
- 专业知识
- >
- 问答
- >
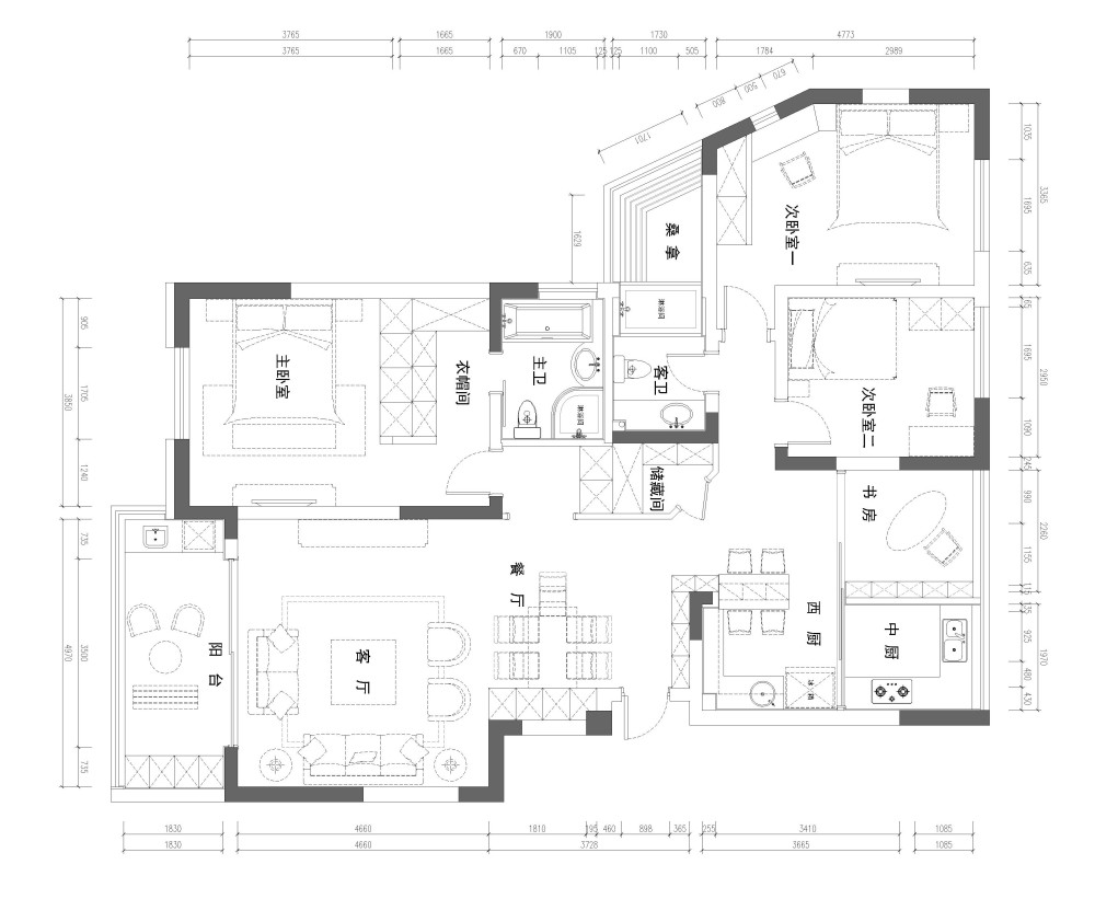
- 求大神指点下平面方案
- 2016-04-16
- 4053
- 1
- 1
| |
AI文本分析中……
AI色彩命名中……
序赞Ai时刻等待着你的命令!~
与Ai对话形式持续执行相关Ai智能体任务。
3134131552016-4-17 10:20:24
| ||
南舍设计2016-4-17 10:53:52
| ||
Alone゜独自2016-4-20 15:51:44
| ||
Alone゜独自2016-4-20 15:53:26
| ||
南舍设计2016-4-21 10:56:47
| ||
南舍设计2016-4-21 10:57:10
| ||
傲世雄才-伟2016-6-18 21:50:28
| ||
南舍设计2016-6-27 18:54:53
| |
南舍设计2016-6-27 18:54:59
| |



