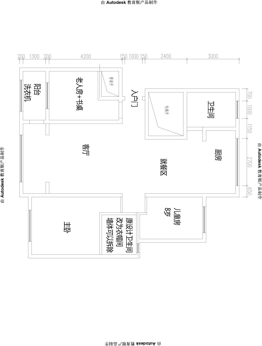
自己的房子,望老师给设计布局下,给个好的方案。谢谢
自己的房子,望老师给设计布局下,给个好的方案。谢谢!
个人喜欢简约现代和实用类型的。喜欢安静、舒适的空间。
自己的房子,望老师给设计布局下,给个好的方案。谢谢_棠悦129-2-布局1.jpg
AI文本分析中……
AI色彩命名中……

序赞Ai时刻等待着你的命令!~

与Ai对话形式持续执行相关Ai智能体任务。

您需要登录后才可以回帖 登录 | 注册序赞号

快速回复 返回顶部 返回列表