复式楼户型设计 大神们给个设计平面布局图意见,相互学习
设计要求
大信大厦.dwg
86.47 KB,下载次数:10


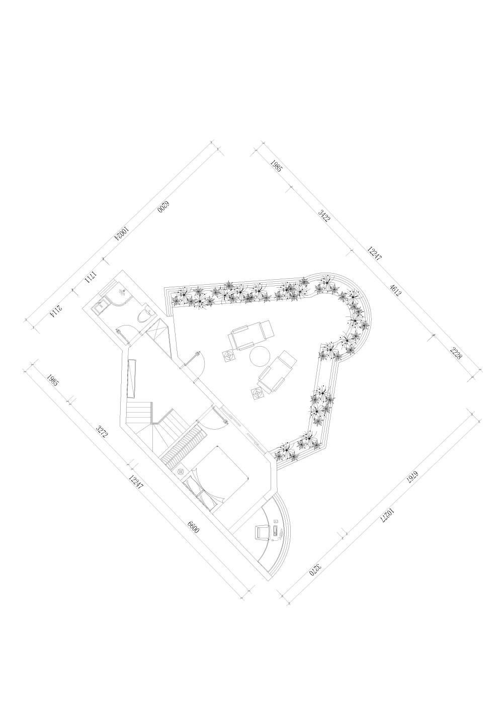
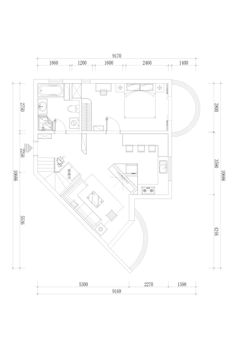
设计要求:全房改动,一楼做一个卧室兼衣帽间,厨房可做开放式厨房,位置随意改。卫生间扩大,楼梯位置跟随设计来定。
          二楼为主卧,要求一房,设计随意。



AI文本分析中……
AI色彩命名中……

序赞Ai时刻等待着你的命令!~

与Ai对话形式持续执行相关Ai智能体任务。

您需要登录后才可以回帖 登录 | 注册序赞号

快速回复 返回顶部 返回列表