书吧、工作室平面 附带dwg
本帖最后由 kopite 于 2016-6-3 17:13 编辑

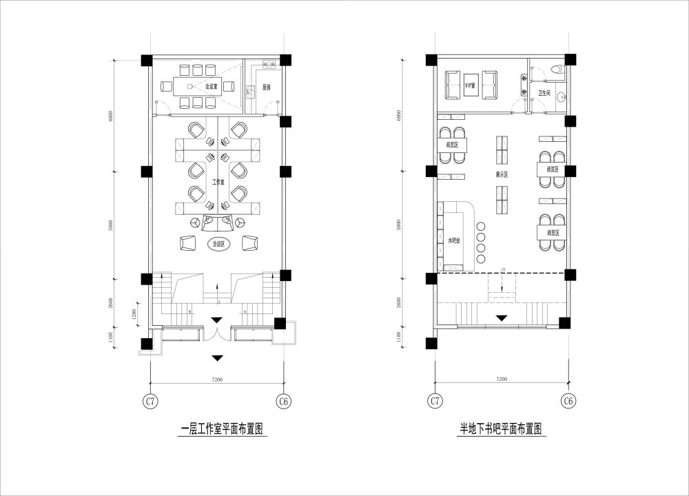
一层为工作室6人工作位 最好有一个卫生间 楼梯踏步下空间可以适当利用
半地下为书吧 需要有一个水吧台 vip和卫生间
书吧-Model.jpg
意向图片
11111.jpg


2222222.jpg


33333.jpg

书吧.dwg
174.29 KB,下载次数:106

希望大家给些思路 谢谢





AI文本分析中……
AI色彩命名中……

序赞Ai时刻等待着你的命令!~

与Ai对话形式持续执行相关Ai智能体任务。

暂时没有评论,你回一个呗!~

您需要登录后才可以回帖 登录 | 注册序赞号

快速回复 返回顶部 返回列表