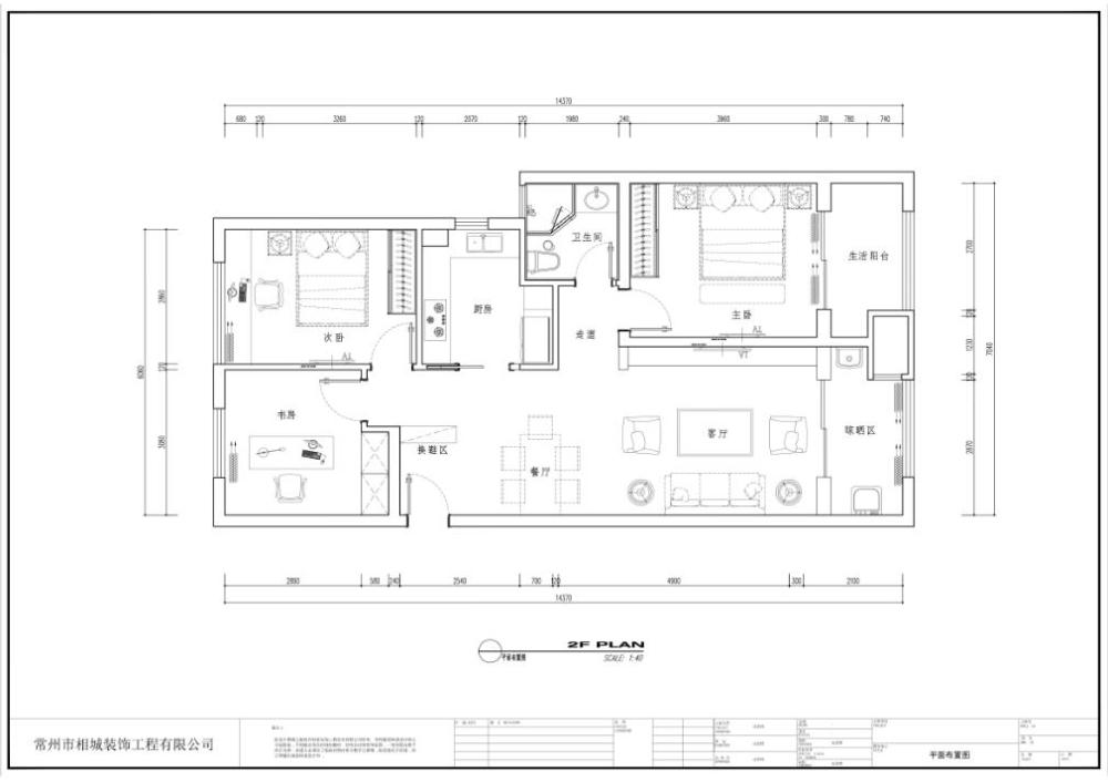
本人新手,做了一套方案,求大神解析!
本帖最后由 抑郁的艾瑞莉娅 于 2016-7-8 10:27 编辑

有没有更优解,
本人新手,做了一套方案,求大神解析!_11.jpg
本人新手,做了一套方案,求大神解析!_22.jpg
AI文本分析中……
AI色彩命名中……

序赞Ai时刻等待着你的命令!~

与Ai对话形式持续执行相关Ai智能体任务。

您需要登录后才可以回帖 登录 | 注册序赞号

快速回复 返回顶部 返回列表