空间串联,巴塞罗那公寓设计
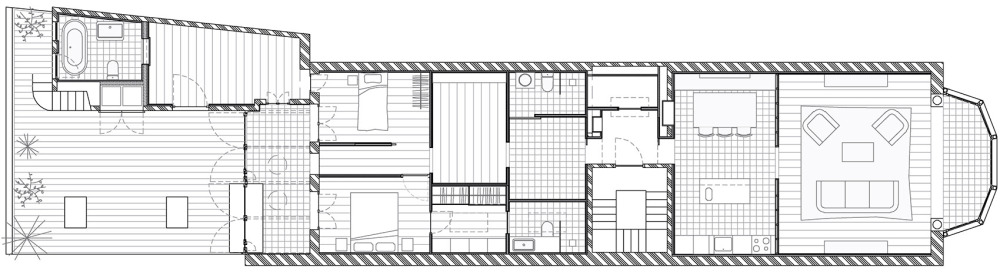
狭长而规整的公寓占地约140平米,平淡无奇的室内空间面临这巨大的转变。临街一侧的巨大玻璃墙面划出一道弧线,弓形窗台为建筑带来优雅的古典气息;而另一端的走廊则紧靠着中庭,开敞的户外空间不经修饰,简单而毫无吸引力。
建筑师引入了两个巧妙的设计策略,让室内空间浑然一体。首先,连接各个房间的空间并不是传统意义上的走道空间,不同的小空间相对而立,形成了一系列没有特定功能、可随主人需要用作游戏、阅读、储藏等用途的暧昧空间。如同脊柱般串联起整个公寓的空间开敞而连续,围合的墙壁略低于天花高度,形成了“盒中盒”的奇妙之感。
其二,建筑师将所有空间竖向划分成了三个部分。贯穿全屋的木质衡横梁与陶制拱顶被刷上了灰色,稍低的内部墙壁留出了空隙,保证了上部空间的完整性。而从60公分到2米3的雪白墙壁成为划分空间的主体结构,为并无门窗、上部连通的小“房间”带来围合感。而在最下部,地面铺装向墙面上蔓延,厨房卫生间的瓷砖,客厅卧室的暗棕色木墙,以及铺设在弓形窗台、中庭走廊等过渡灰空间的螺纹砖块,不同的铺装暗示着其所在空间的不同功能,同时也保证了在入口处观看时空间的完整性和对称性。建筑师在公寓内部不同空间间以及外部入口的划分出都使用了白色细微水泥这种新型材料,经过重新规划的室外空间明确了庭院与城市街道的界限,让空间更加完整与实用。
一系列边界明确的空间彼此相连,从中心向两侧蔓延开来,柔和的阳光透过上部的缝隙与留空的门洞向内渗透,形成了逐层递减的美丽光影层次,而私密性也遵循着与之相似的规律,层层递增。
紧靠内庭的走廊结构被完全拆除重建,错落的划分方式与变换着透明度的玻璃为新建的巨大木门带来丰富的变化,同时也在照亮室内空间的同时,阻挡着外界过往路人不经意的注视。

空间串联,巴塞罗那公寓设计_031-TAMARIT-01-2000.jpg
空间串联,巴塞罗那公寓设计_031-TAMARIT-02-2000.jpg
空间串联,巴塞罗那公寓设计_031-TAMARIT-03-2000.jpg
空间串联,巴塞罗那公寓设计_031-TAMARIT-04-2000.jpg
空间串联,巴塞罗那公寓设计_031-TAMARIT-05-2000.jpg
空间串联,巴塞罗那公寓设计_031-TAMARIT-08-2000.jpg
空间串联,巴塞罗那公寓设计_031-TAMARIT-10-2000.jpg
空间串联,巴塞罗那公寓设计_031-TAMARIT-11-2000.jpg
空间串联,巴塞罗那公寓设计_031-TAMARIT-12-2000.jpg
空间串联,巴塞罗那公寓设计_031-TAMARIT-13-2000.jpg
空间串联,巴塞罗那公寓设计_031-TAMARIT-14-2000.jpg
空间串联,巴塞罗那公寓设计_031-TAMARIT-15-2000.jpg
空间串联,巴塞罗那公寓设计_031-TAMARIT-16-2000.jpg
空间串联,巴塞罗那公寓设计_031-TAMARIT-17-2000.jpg
空间串联,巴塞罗那公寓设计_031-TAMARIT-19-2000.jpg
空间串联,巴塞罗那公寓设计_031-TAMARIT-20-2000.jpg
空间串联,巴塞罗那公寓设计_031-TAMARIT-22-2000.jpg
空间串联,巴塞罗那公寓设计_031-TAMARIT-PREVIOUS_01.jpg
空间串联,巴塞罗那公寓设计_031-TAMARIT-PREVIOUS_02.jpg
空间串联,巴塞罗那公寓设计_031-TAM-publicaciones-planta-2000.jpg
AI文本分析中……
AI色彩命名中……

序赞Ai时刻等待着你的命令!~

与Ai对话形式持续执行相关Ai智能体任务。

您需要登录后才可以回帖 登录 | 注册序赞号

快速回复 返回顶部 返回列表