酒店客房方案讨论
一个酒店客房 排了几个方案 但总感觉突破不了 有大神给点意见不
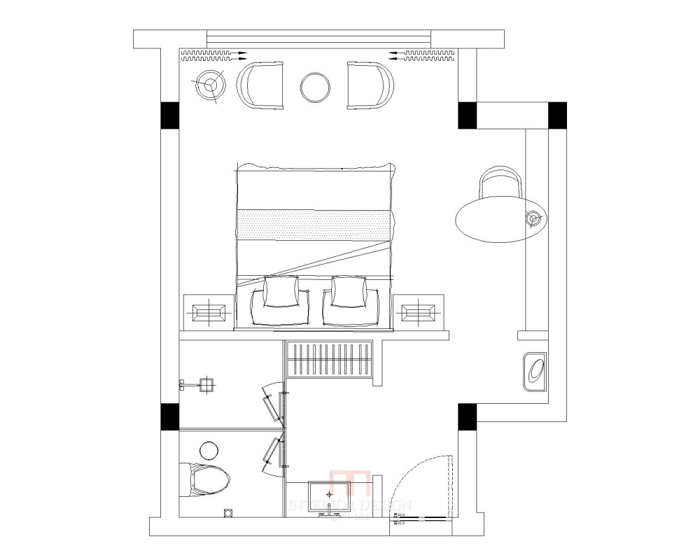
酒店客房方案讨论_方案2-Model.jpg
酒店客房方案讨论_方案-Model.jpg
新块.dwg
81.17 KB,下载次数:13
AI文本分析中……
AI色彩命名中……

序赞Ai时刻等待着你的命令!~

与Ai对话形式持续执行相关Ai智能体任务。

您需要登录后才可以回帖 登录 | 注册序赞号

快速回复 返回顶部 返回列表