请各位前辈给个最佳方案!
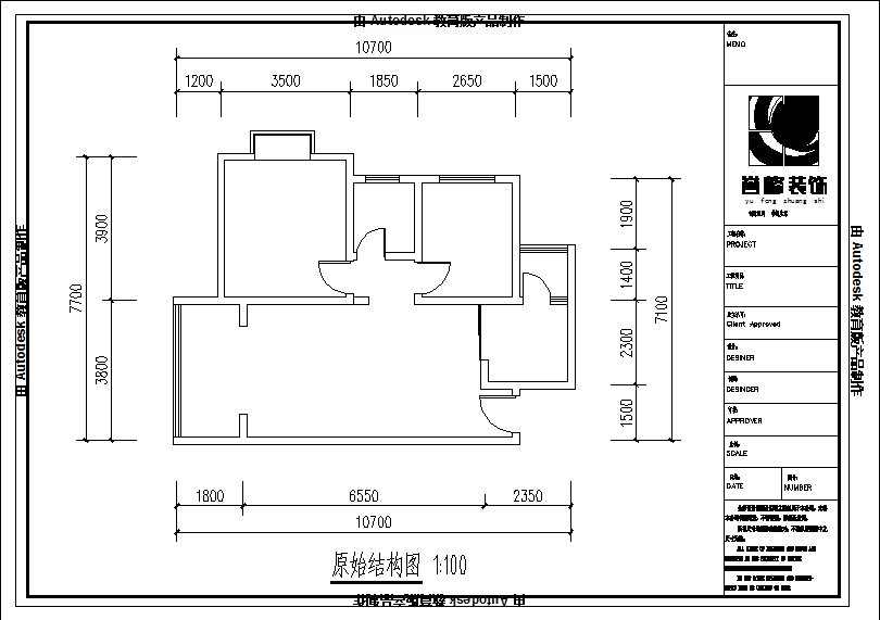
一对小夫妻,喜欢现代简约和温馨,厨房做开放式,准备要小孩,要求布局不要太常规。谢谢!各位前辈,麻烦大家了!小户型两室两厅一卫74㎡。室内无剪力墙!

原始结构图

请各位前辈给个最佳方案!_原始结构图
Drawing2.dwg
( 原始结构图 )
57.01 KB,下载次数:3
AI文本分析中……
AI色彩命名中……

序赞Ai时刻等待着你的命令!~

与Ai对话形式持续执行相关Ai智能体任务。

暂时没有评论,你回一个呗!~

您需要登录后才可以回帖 登录 | 注册序赞号

快速回复 返回顶部 返回列表