
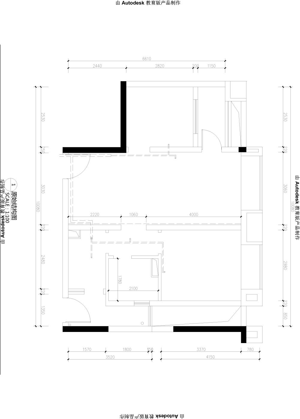
- 平面规划
- >
- 住宅
- >
- 小套二 如何平面规划更合理
- 2016-09-11
- 3931
- 2
- 1
| |
AI文本分析中……
AI色彩命名中……
序赞Ai时刻等待着你的命令!~
与Ai对话形式持续执行相关Ai智能体任务。
aaaaaaaaaab2016-9-12 11:18:07
| |
z5176900952016-9-12 16:08:18
| |
aaaaaaaaaab2016-9-12 16:10:15
| |
aaaaaaaaaab2016-9-12 16:11:08
RE: 小套二 如何平面规划更合理
| ||
z5176900952016-9-12 16:11:24
| |
黑桃斑马2016-9-12 17:03:16
| ||
黑桃斑马2016-9-12 17:06:10
| |
黑桃斑马2016-9-12 17:33:26
| ||
aaaaaaaaaab2016-9-13 20:49:10
| |




