
- 专业知识
- >
- 问答
- >
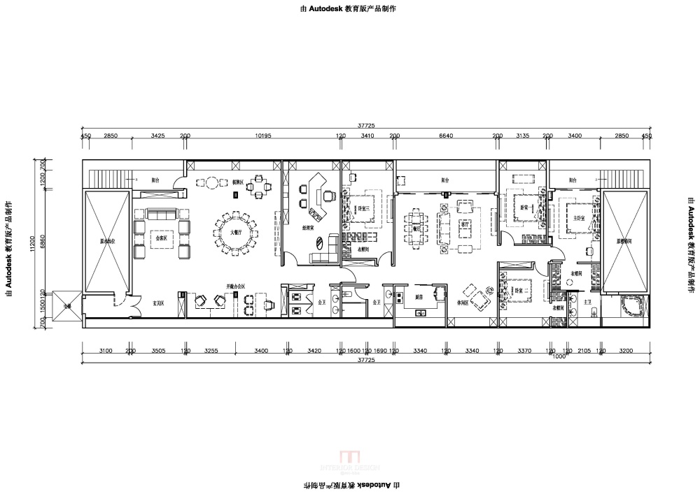
- 350平的厂房改住宅,大师来优化优化
- 2016-09-18
- 3359
- 0
- 0
| |
AI文本分析中……
AI色彩命名中……
序赞Ai时刻等待着你的命令!~
与Ai对话形式持续执行相关Ai智能体任务。
只对你有感觉602016-9-19 10:19:48
| ||
辛弃疾2016-9-19 11:07:31
RE: 350平的厂房改住宅,大师来优化优化
| ||
lijianming5092016-9-19 12:30:10
RE: 350平的厂房改住宅,大师来优化优化
| ||
smellsmartdd2016-9-19 14:42:44
| ||
x3428602016-9-20 12:10:28
| ||
只对你有感觉602016-9-21 19:19:07
RE: 350平的厂房改住宅,大师来优化优化
| ||
lijianming5092016-9-22 10:25:38
RE: 350平的厂房改住宅,大师来优化优化
| ||
只对你有感觉602016-9-22 17:58:31
| ||
ok35915512016-10-12 14:44:34
RE: 350平的厂房改住宅,大师来优化优化
| ||



