
- 平面规划
- >
- 住宅
- >
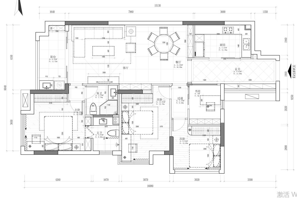
- 三房改四房,大神看看
- 2016-09-18
- 1395
- 0
- 0
| |
AI文本分析中……
AI色彩命名中……
序赞Ai时刻等待着你的命令!~
与Ai对话形式持续执行相关Ai智能体任务。
zhou1ji2lai32016-9-18 20:01:57
| ||
SAA2016-9-18 20:02:34
| ||
zhou1ji2lai32016-9-18 20:11:51
| ||
zhou1ji2lai32016-9-18 20:13:16
| |
zhou1ji2lai32016-9-18 20:13:40
| |
zhou1ji2lai32016-9-22 16:01:51
| ||




