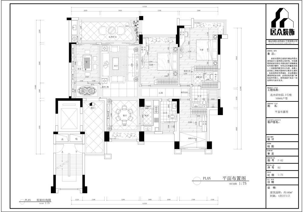
要求不闲,实用,方正,大气。。。。
平面方案,求指点_碧桂园-Mode3.jpg
平面方案,求指点_碧桂园-Model2.jpg
平面方案,求指点_碧桂园-Model11.jpg
Ai 分析中……

暂无用户创作记录!~

记录用户以此项目图片为灵感使用Ai进行二次创作。

您需要登录后才可以回帖 登录 | 注册序赞号

快速回复 返回顶部 返回列表