
- 2016-11-05
- 2977
- 2
- 1
| |
AI文本分析中……
AI色彩命名中……
序赞Ai时刻等待着你的命令!~
与Ai对话形式持续执行相关Ai智能体任务。
洛尔迪2016-11-8 20:45:40
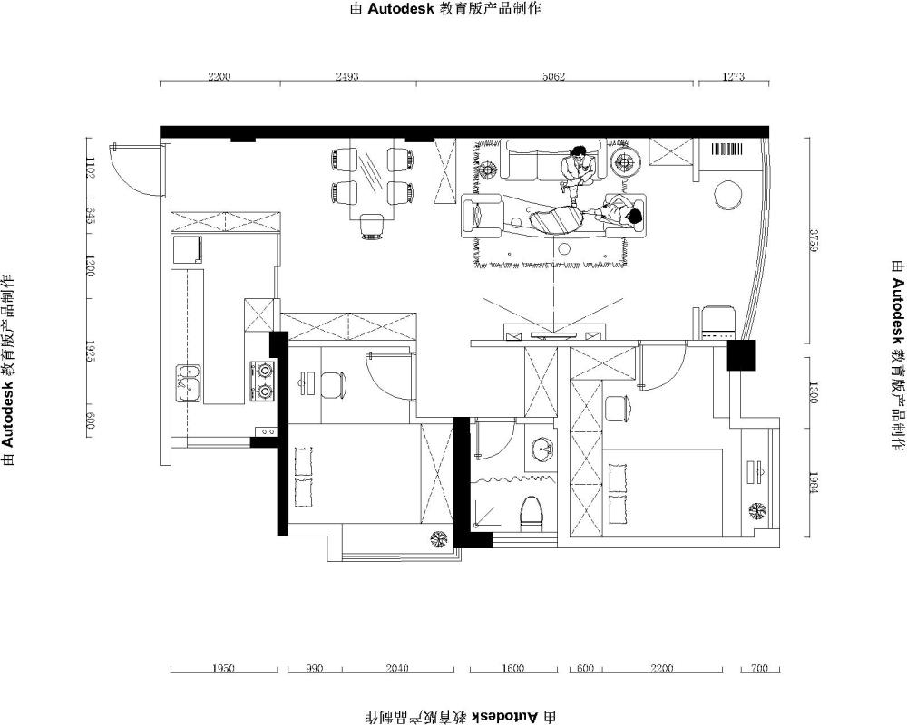
RE: 90平方的布局方案优化,被选中者悬赏57DB
| ||
莓渴2016-11-9 09:04:11
| ||
qq20142016-11-9 12:05:33
| ||
weixuan19912016-11-9 12:18:21
RE: 90平方的布局方案优化,被选中者悬赏57DB
| ||
weixuan19912016-11-9 16:35:29
RE: 90平方的布局方案优化,被选中者悬赏57DB
| ||
洛尔迪2016-11-9 18:23:28
| |
weixuan19912016-11-10 09:10:42
| |




