双拼别墅户型研讨
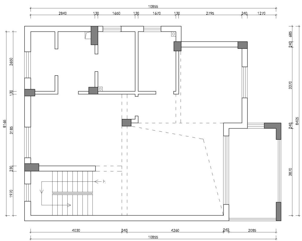
这是一个双拼别墅,布置前提是尽量不要改动外观,一层需要一个多功能室可以临时休息的,同时又希望尽量通透,二层需要一个茶室以及两个卧室,阳台也可以加以利用,三层做一个大套间,大致做了一个方案,二楼考虑阳台不能动做了两个,请大家指点哦


双拼别墅户型研讨_11111111111.jpg
双拼别墅户型研讨_22222.jpg
双拼别墅户型研讨_3333333333.jpg
双拼别墅户型研讨_1.jpg
双拼别墅户型研讨_2.1.jpg
双拼别墅户型研讨_2.2.jpg
双拼别墅户型研讨_3.jpg
AI文本分析中……
AI色彩命名中……

序赞Ai时刻等待着你的命令!~

与Ai对话形式持续执行相关Ai智能体任务。

暂时没有评论,你回一个呗!~

您需要登录后才可以回帖 登录 | 注册序赞号

快速回复 返回顶部 返回列表