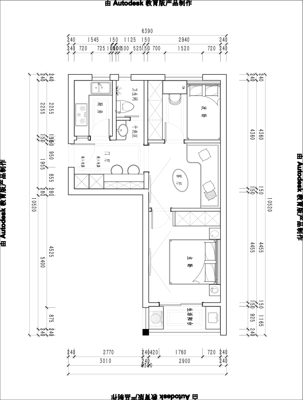
60平两室两厅一厨一卫
房子厨房和卫生间的位置是不能动,别的都可以敲,自己做了一个,但是没有用餐区域, 求指点,可以跳一点,业主是年轻夫妇,有一个小孩
60平两室两厅一厨一卫_小户型方案1.jpg
60平两室两厅一厨一卫_小户型2.jpg
AI文本分析中……
AI色彩命名中……

序赞Ai时刻等待着你的命令!~

与Ai对话形式持续执行相关Ai智能体任务。

您需要登录后才可以回帖 登录 | 注册序赞号

快速回复 返回顶部 返回列表