
- 平面规划
- >
- 住宅
- >
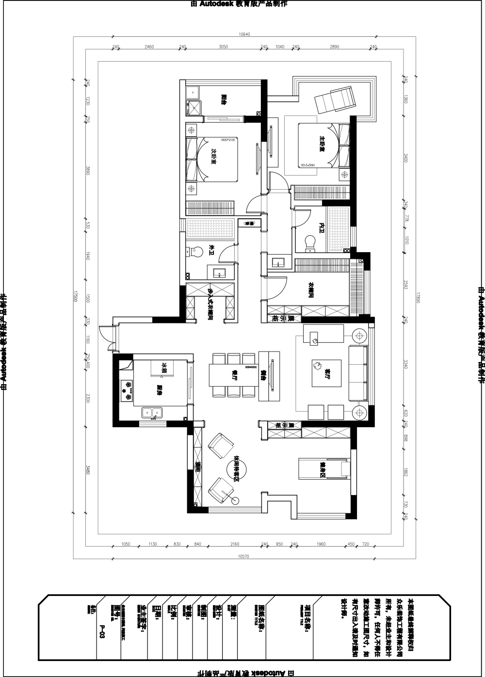
- 美式或现代风格的平面布置图求指教
- 2016-12-11
- 2580
- 0
- 0
AI文本分析中……
AI色彩命名中……
序赞Ai时刻等待着你的命令!~
与Ai对话形式持续执行相关Ai智能体任务。
junxin4149882016-12-11 12:25:24
| ||
懒虫的等待2016-12-11 14:14:41
RE: 美式或现代风格的平面布置图求指教
| ||
6018048172016-12-11 15:04:44
| |
6018048172016-12-11 15:08:24
| |
junxin4149882016-12-11 18:34:43
| |




