
- 平面规划
- >
- 住宅
- >
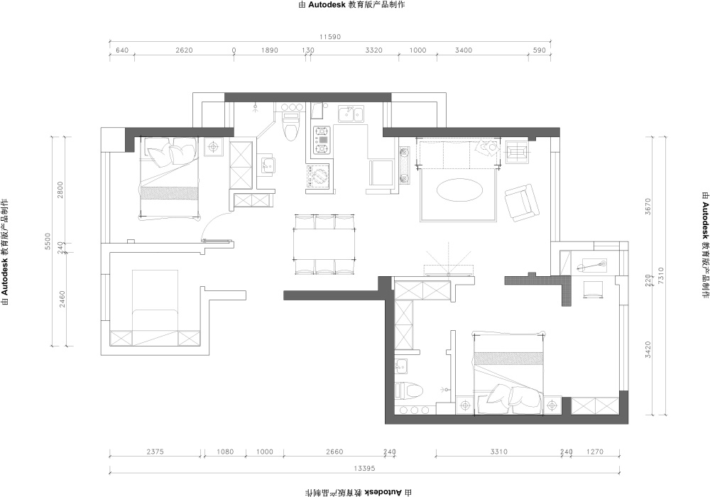
- 入户求帮助,浪费空间。房间又太小太窄
- 2017-01-03
- 6398
- 0
- 0
| |
AI文本分析中……
AI色彩命名中……
序赞Ai时刻等待着你的命令!~
与Ai对话形式持续执行相关Ai智能体任务。
cheensir2017-1-3 17:02:14
| ||
187258722082017-1-3 17:25:12
RE: 入户求帮助,浪费空间。房间又太小太窄
| ||
cheensir2017-1-3 17:28:36
| |
zhaiwuzhe2017-1-3 18:20:53
| ||
junxin4149882017-1-3 18:43:37
| ||
cheensir2017-1-3 20:20:21
| |
cheensir2017-1-3 20:20:39
| |
z88546502017-1-3 20:33:17
| ||
z88546502017-1-3 20:39:29
RE: 入户求帮助,浪费空间。房间又太小太窄
| ||




