AI文本分析中……
AI色彩命名中……

序赞Ai时刻等待着你的命令!~

与Ai对话形式持续执行相关Ai智能体任务。

3325032152017-6-6 16:45:07

RE: 求助各位大神帮忙优化

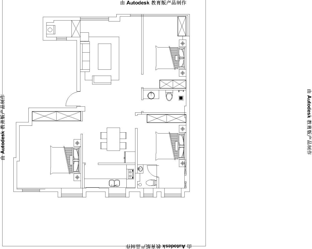
我随便搞了下,不知道现场情况,希望可以帮到你
求助各位大神帮忙优化_Drawing1_recover-Model.jpg
yuzhizxz2017-6-6 18:03:57

RE: 求助各位大神帮忙优化

332503215 发表于 2017-6-6 16:45
我随便搞了下,不知道现场情况,希望可以帮到你

很好的思路,但是第一张标注尺寸图里的墙都是沉重墙跟柱子哦,不能敲
3325032152017-6-7 10:48:51
{:4_186:}{:4_186:}{:4_186:}{:4_172:}{:4_172:}{:4_172:}{:4_172:}你的户型有点难度
爱芒果台2017-6-21 16:21:51

RE: 求助各位大神帮忙优化

不知道这样能行得通吗?
求助各位大神帮忙优化_095419ey6zm6mawyzx0xuc.png
绿了芭乐2017-6-21 23:39:20
0015212
求助各位大神帮忙优化_微信截图_20170621233614.jpg
12
您需要登录后才可以回帖 登录 | 注册序赞号

快速回复 返回顶部 返回列表