求大家的宝贵意见
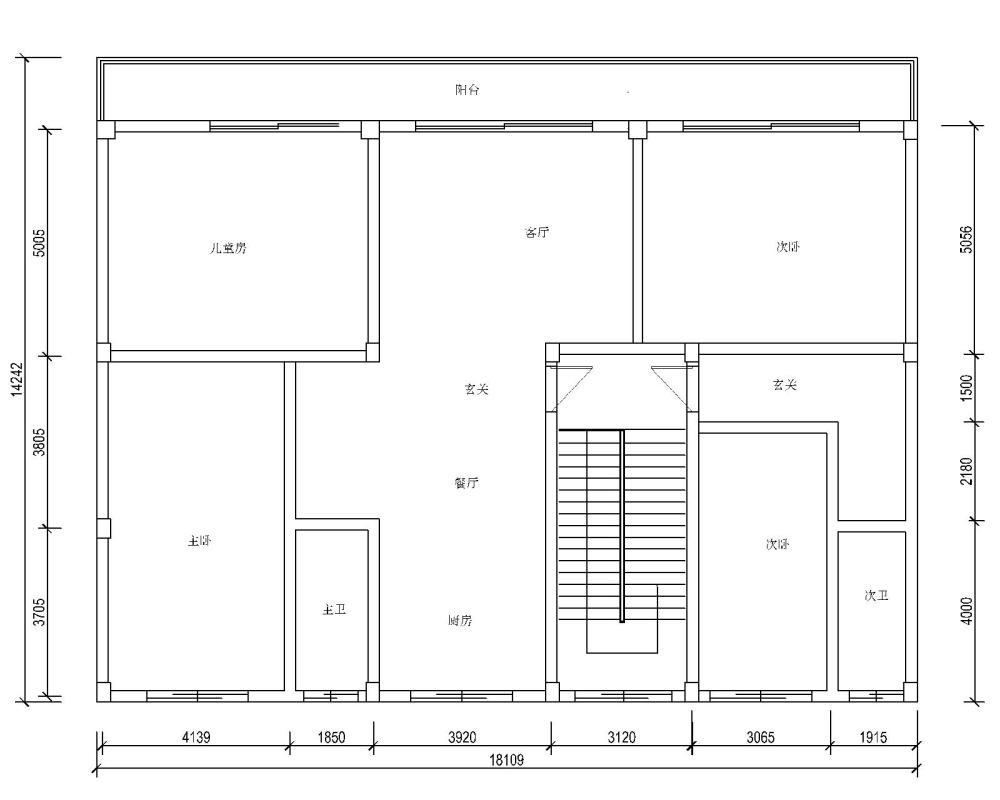
主次卫已经更改不了,大神们看看怎么更改户型图优化及规化。其他无要求!多谢大家百忙之中来探讨指正!
求大家的宝贵意见_3层原建筑平面图-Model.jpg
AI文本分析中……
AI色彩命名中……

序赞Ai时刻等待着你的命令!~

与Ai对话形式持续执行相关Ai智能体任务。

暂时没有评论,你回一个呗!~

您需要登录后才可以回帖 登录 | 注册序赞号

快速回复 返回顶部 返回列表