
- 2017-08-04
- 6758
- 0
- 0
Ai 分析中……
暂无用户创作记录!~
记录用户以此项目图片为灵感使用Ai进行二次创作。
王智涛2017-8-9 11:01:41
| |
王智涛2017-8-9 17:22:58
| |
zhulu62312862017-8-9 17:48:01
| ||
某随2017-8-9 22:07:45
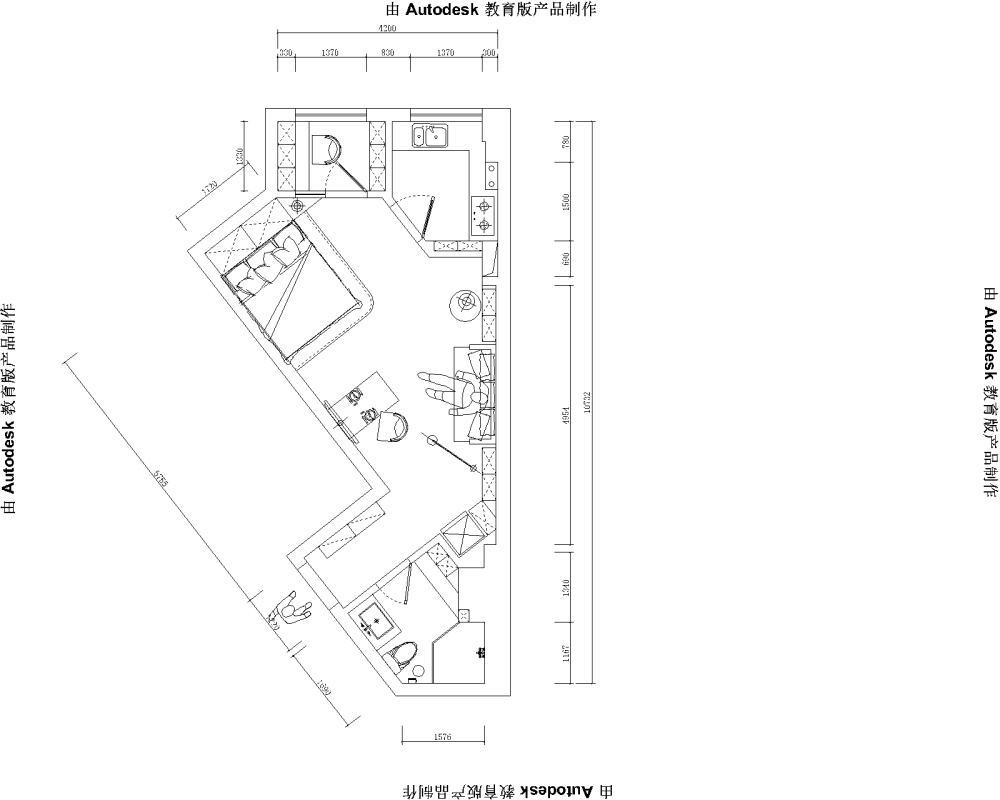
RE: 不规则单身公寓 平面求助!!希望大神给点建议
| ||
KKKaren5202017-8-10 17:17:20
RE: 不规则单身公寓 平面求助!!希望大神给点建议
| ||
王智涛2017-8-11 08:47:37
| |
王智涛2017-8-11 08:49:56
| |
rc19932284272017-8-12 10:26:46
| ||
一ROBIN一2017-8-12 10:56:28
RE: 不规则单身公寓 平面求助!!希望大神给点建议
| ||
放手搏2017-8-12 16:04:52
| |