求助各位大神,如何应对这个奇葩的方案
本帖最后由 zxzxz 于 2017-10-20 23:52 编辑

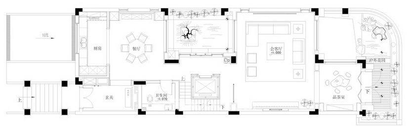
这是一个联排别墅的一层,业主说不需要客厅 ,也不要电视,要把客厅改成起居室,陪两个孩子看书学习的地方,有书柜墙、沙发、茶台的地方。全屋是美式风格,客厅5.5X7M,层高3.5!这么大的起居室,还要布置美式温馨厚重的风格,做了几个方案都不合适,特来此求各位大神指点,多谢多谢!
求助各位大神,如何应对这个奇葩的方案_1.jpg
AI文本分析中……
AI色彩命名中……

序赞Ai时刻等待着你的命令!~

与Ai对话形式持续执行相关Ai智能体任务。

您需要登录后才可以回帖 登录 | 注册序赞号

快速回复 返回顶部 返回列表