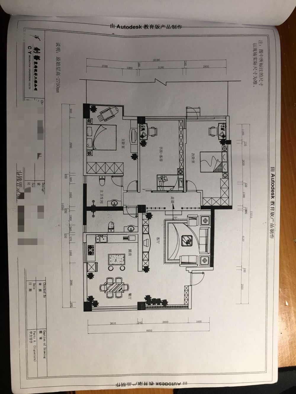
旧屋改造 想调整下格局
旧屋改造 想调整下格局
  想满足主卧  衣帽间 婴儿房 健身用地 可以晒太阳休闲用地 书房(可两人同时用) 厨房 客厅

旧屋

旧屋改造 想调整下格局_旧屋
AI文本分析中……
AI色彩命名中……

序赞Ai时刻等待着你的命令!~

与Ai对话形式持续执行相关Ai智能体任务。

您需要登录后才可以回帖 登录 | 注册序赞号

快速回复 返回顶部 返回列表