
- 2017-11-13
- 4127
- 1
- 0
| |
AI文本分析中……
AI色彩命名中……
序赞Ai时刻等待着你的命令!~
与Ai对话形式持续执行相关Ai智能体任务。
lp5201102017-11-13 16:55:36
| ||
宇宙Designer2017-11-14 11:29:32
| |
陌上、烟雨遥i2017-11-14 14:50:58
| ||
陌上、烟雨遥i2017-11-14 14:52:23
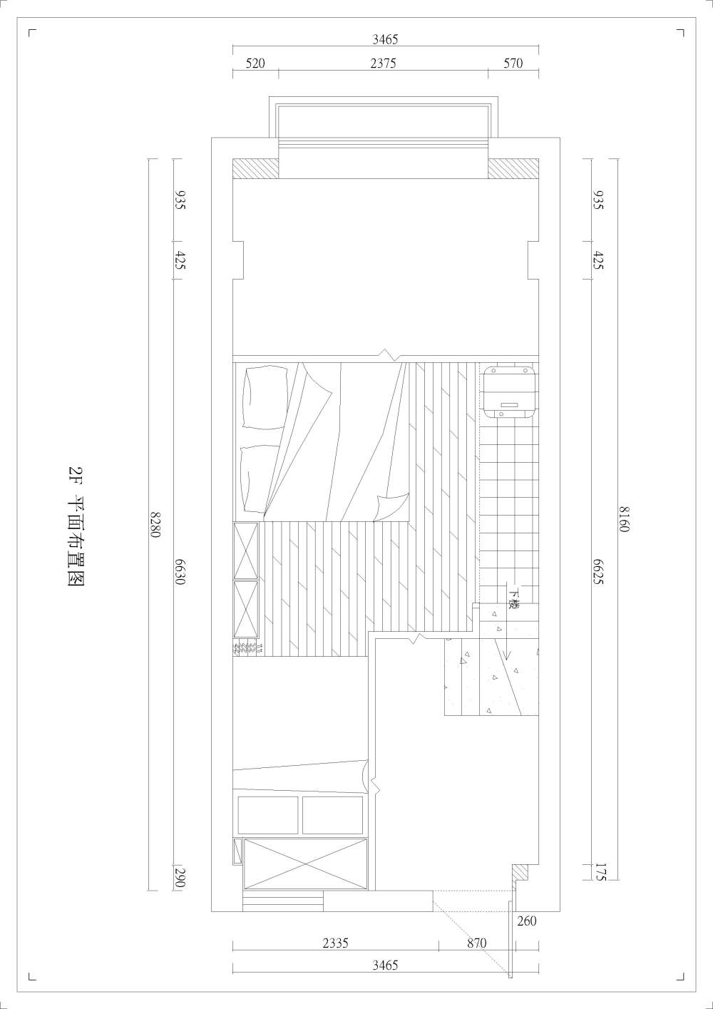
RE: 各位大神帮忙看一下,这个方案好吗?还能怎么优化???
| ||
陌上、烟雨遥i2017-11-14 14:52:35
RE: 各位大神帮忙看一下,这个方案好吗?还能怎么优化???
| ||
陌上、烟雨遥i2017-11-14 14:57:09
| ||
lp5201102017-11-14 15:03:43
RE: 各位大神帮忙看一下,这个方案好吗?还能怎么优化???
| ||
宇宙Designer2017-11-16 10:29:24
| |
陌上、烟雨遥i2017-11-16 10:52:26
| |




