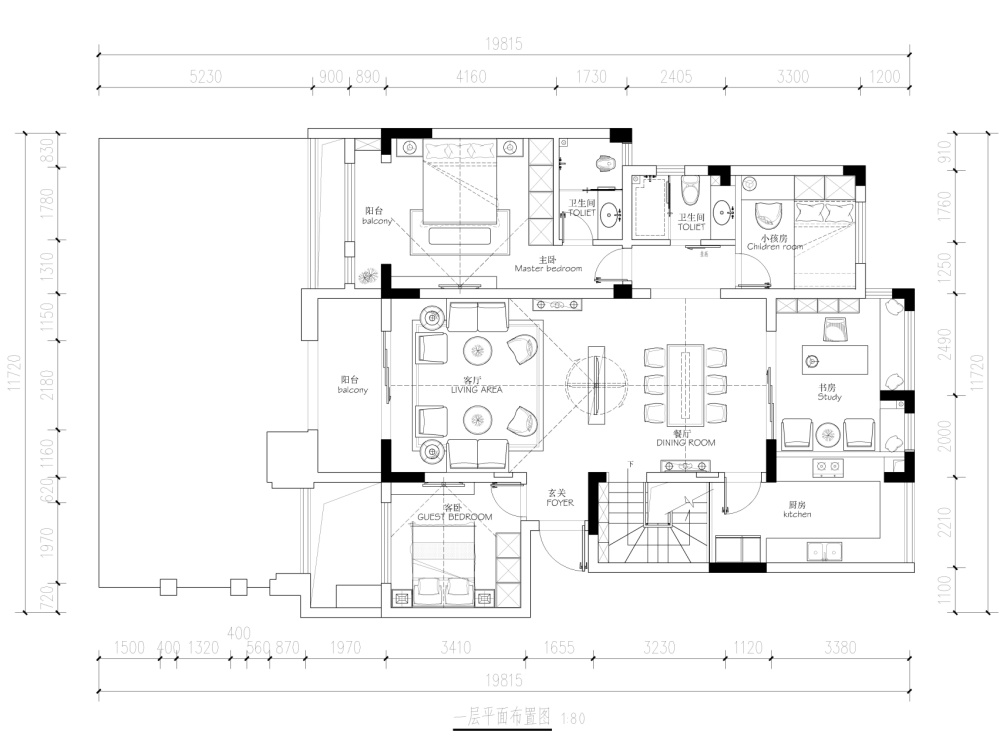
户型优化
设计要求:一层三间卧室一个书房,分别为主卧、小孩房、父母房、书房                 二层需要一个影音室
AI文本分析中……
AI色彩命名中……

序赞Ai时刻等待着你的命令!~

与Ai对话形式持续执行相关Ai智能体任务。

您需要登录后才可以回帖 登录 | 注册序赞号

快速回复 返回顶部 返回列表