复式楼
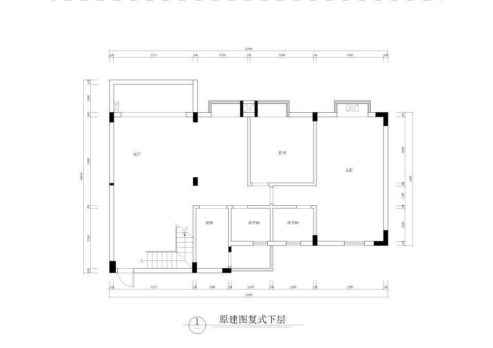
复式楼,四房。做了三个方案否了两个,其中楼梯位置,该怎样设计好, 请大神帮忙看看。
乐欣华庭1-Model.jpg
乐欣华庭2-Model.jpg
乐欣华庭3-Model.jpg
乐欣华庭4-Model.jpg


345345.dwg
887.53 KB,下载次数:10



AI文本分析中……
AI色彩命名中……

序赞Ai时刻等待着你的命令!~

与Ai对话形式持续执行相关Ai智能体任务。

暂时没有评论,你回一个呗!~

您需要登录后才可以回帖 登录 | 注册序赞号

快速回复 返回顶部 返回列表