新出炉的方案,看一眼,给建议
新出炉的方案,路过的可以给建议
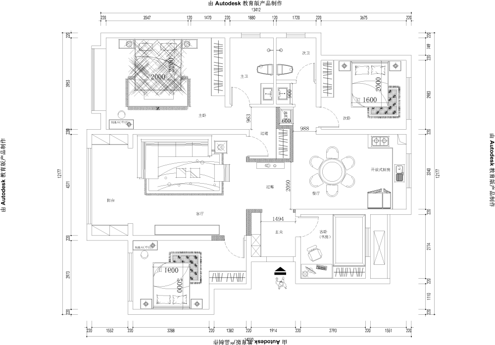
新出炉的方案,看一眼,给建议_原始.png
新出炉的方案,看一眼,给建议_上善颐园户型-Model.png
AI文本分析中……
AI色彩命名中……

序赞Ai时刻等待着你的命令!~

与Ai对话形式持续执行相关Ai智能体任务。

您需要登录后才可以回帖 登录 | 注册序赞号

快速回复 返回顶部 返回列表