求大神布置一下方案,小弟感激不尽
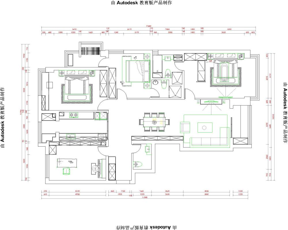
业主需求;三代人居住,让业主最不满意的是厨房那两道墙,餐厅太浪费,主卧的衣帽间太别扭。需要一个书房,还有一架钢琴。收纳空间合理。现代简约风格。
上个帖子平面图发错了,,,尴尬
求大神布置一下方案,小弟感激不尽_320696416146565303.jpg
123.dwg
202.78 KB,下载次数:15
AI文本分析中……
AI色彩命名中……

序赞Ai时刻等待着你的命令!~

与Ai对话形式持续执行相关Ai智能体任务。

您需要登录后才可以回帖 登录 | 注册序赞号

快速回复 返回顶部 返回列表