 匠心私宅
“设计改变生活”

项目简介
项目名称:龙樾华府下叠 建筑面积:270 平米 设计风格:现代轻奢
毛坯现场

设计理念
 Coco Chanel 女士曾这样描述轻奢:" 它以最小的体积,凝聚了最大的价值。 "
简约为轻,品质为奢。轻奢生活是指一种倡导 "轻奢华、新时尚" 的生活理念,轻奢只是一种更尊重生活品质的生活方式,与财富多寡、地位高低无关,它代表着对高品质生活细节的追求。现代主义的见解,独特化的风格,简单设计之中见昂贵。  设计师以简洁而舒适的质感,诠释了业主想要回归本真的生活状态。将一种独特的富有质感和韵味的空间氛围融入居所,唤醒了我们内心深处对于品质生活的憧憬与向往。
空间格局
▽ 一层
原始结构图
 原始户型问题: 1. 原始结构厨房面积较小,没有充分利用空间。 2. 原始结构客厅面积过小,缺少家人的互动空间。
平面图  解决方案: 1. 扩大厨房面积,增加该功能区的使用需求。 2. 重新规划客厅区域,扩大客厅面积。客房拆改做钢琴厅,增加了一层的使用功能。
▽ 二层
原始结构图  原始户型问题: 1. 原始结构未规划生活区域。 2. 原始结构走廊流线不合理。
平面图  解决方案: 1. 新建墙体围合成衣帽间面积,完善该功能区的使用需求。 2. 将主卧及客卧的墙体拆改新建,规整了走廊空间。
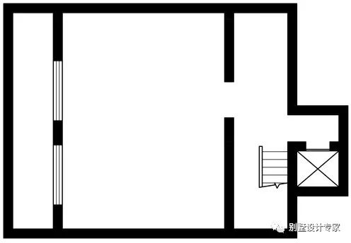
▽ 地下一层
原始结构图  原始户型问题: 1. 室内格局不合理。 2. 原始结构未规划卫生间区域。
平面图  解决方案: 1. 拆除采光井处的窗口,使整个空间更通畅,方便生活。 2. 重新规划卫生间区域。
设计意向图
客厅  以柔化刚,以刚聚柔,高级灰的美令人上瘾。客厅空间搭配着素白和灰褐色的墙面、冰川灰色布艺沙发等,简练素雅的配色以及搭配手法构建出了一个精致优雅、简约现代的空间。其中高密度大理石纹地面与墙面的对比、金属吊灯与黑色茶几的联结映衬等装饰细节处设计处理独到巧妙。
客厅  都市轻奢风与中性色调的结合,为我们展现出一份独特而个性的精雅之美。灰调墙面的装饰设计十分巧妙,光亮而深重的色泽彰显出一份沉稳与深邃的魅力,配搭百合白天花板以及浅灰色调的内饰家居,层次鲜明地呈现出醇厚时尚的质感。
餐厅  天花板进行了纹理式装饰,素雅的大理石地面与灰色墙面形成良好的视感衔接,打造着低调沉静的精致韵味。吧台处选择了灰色与大理石纹路台面配搭,典雅稳重,尤其是呈现着金属色泽的灯饰及置物架,在张力碰撞中带动了该区域的氛围。
餐厅  餐厅处设计行云流水般展示着低调与优雅。爵士白的背景强调着一份温馨与舒柔,配搭不同灰度值的家居,沉静色彩的铺展使得空间充斥着一种随性不羁的意味。而恰到好处的灯饰器具与挑高处挂画的对视,更是将这种洒脱不羁推向极致。
卧室  深棕色作为主卧背景装饰,以其深沉及低调展现不凡品味。搭配着同样色调浓郁的蓝调双人床、配以高级灰与造型别致的灯饰加固色调,整个空间低调有礼,贵气十足。
卧室  当简约成了一种风尚,灰绿色天生的自然气质也成了最好的背景色。中性色控场的卧室充满了典雅气质,灰调蓝床品与浅棕色地毯的搭配充满了戏剧性张力,展现着沉炼优雅的视感体验。
卧室  该空间运用了在家居中最常见的冷感风,以极简带入,黑白灰的色彩构成,加入现代简约的家居设计,形成极其骨感而高冷的效果,冷静而时尚大气。

尚层第三中心主创设计师
国际 ICDA 注册软装设计师
注册高级室内设计师
尚层装饰十佳设计师
设计师作品赏析
富力城   
燕西华府    
陈设作品     
— The End — 更多作品,敬请关注,咨询热线:13651030333【可加微信】 原创文章,欢迎分享,未经授权,严禁转载想免费看方案 长按二维码,直接咨询 
分享|设计|软装|全案
|