有家的地方 就有亚町
AD DESIGN 亚町设计 · 私宅定制
你在,春华秋实夏蝉冬雪。你不在,春夏秋冬。 ----- «春夏秋冬»
owner's story —— 业主故事
在某个夕阳落下夜幕来临的晚上,一对颜值爆表、打扮潮范的情侣走进了公司。他们在微博上看见亚町设计案例的那刻就喜欢上了,照着地址就寻了过来,正巧遇上在加班的设计师谭小兔,他们之间关于家的空间创造就从这里开启。

Project Description —— 项目介绍
项目地址 | Address:绿地海外滩 建筑面积 | Area:228 .0㎡ 设计风格丨Design style:现代风格
室内设计 | Interior Design:亚町设计 施工单位丨Construction unit :质点营造 摄影机构丨Photography studio:上屋摄影
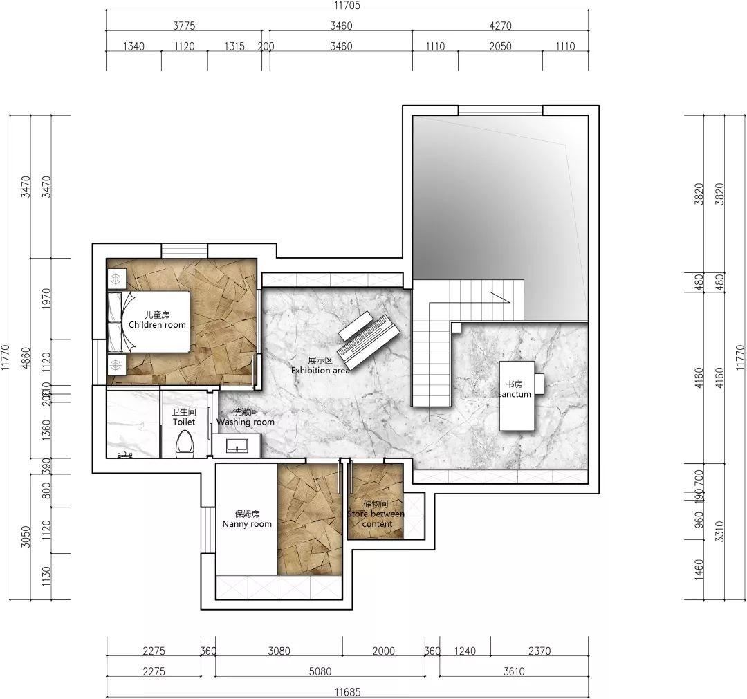
Interior design / 平面设计图
 
Description / 设计说明
FOYER/前厅
     这是一个顶层复式,一楼的房高过高而二楼的房高又过矮,上楼的踏步比正常要多上几个,上楼还容易撞到头,因而楼梯的设计是一个很大的难点。
在设计了七八个版本过后,得到了最后呈现的这个设计,既能在上楼的时候避免撞梁的问题,又有足够的空间放置楼梯的位置,在这个基础上还解决了客厅直对入户门的问题。在视觉效果呈现上楼梯扶手采用竖条方钢,既美观,又能当玄关隔断用。
LIVING ROOM /客厅
       客厅的顶面根据原房结构做了吊顶,保持异形,两边留有氛围灯带,时尚又浪漫。电视墙采用爵士白提亮整个空间,而沙发背景墙使用整面艺术涂料,内嵌线性灯带作为点缀,添加一些活泼的气息。
电视墙的一边是一道进入生活阳台的隐形门,对称的另一边则是玻璃阳光房,专属于小仙女的多肉世界。
DINING ROOM /餐厅
  餐厅上方挑空搭建书房,跟客厅形成空间差。餐厅墙面跟顶面是同材质的饰面板,整个饰面板里藏着两扇隐形门,居家空间里的小微妙。
BEDROOM /卧室    主卧设计成一个套房,衣帽间单独分开。小仙女对服饰有着很高的要求,采用玻璃柜门,内设灯带方便识别衣服。背景墙设计成隐形门,打开就是主卫,如生活里的小故事,推开一扇门,遇见一个惊喜。
STUDY /书房
 二层目前只有书房,采用玻璃护栏,李酷酷在楼上玩游戏,小仙女在楼下看电视,互通的空间,沟通更方便。
BATHROOM /卫生间
  一层卫生间做了干湿分离,洗手台放置在过道,保证次卫的使用率,次卫的台面现场制作外贴毛石,墙面用了深灰色水泥砖错铺,呼应整个空间酷酷的基调。
文末献上 软装配饰搭配参考
- End -
风也吹过 雨也来过 雪也下过 晴也停过
在每一分每一秒里
谱写家的乐章 亚町,与你一起
|