渝舍印象酒店,上海 : 本哲建筑 首
原招待所由四栋旧楼组成,楼内空间狭小,光线不足,改造的重点便是空间重构,为原本狭小昏暗的内部空间引入阳光和自然。历经半年余,设计师将旧宅解构嫁接成现在的一栋庭院相间、内外相连的复合建筑。由水岸造景、露台、客房、餐厅、茶室以及园林等部分组成,兼具了民宿的功能性和景观,讲究细节的精致打磨。在整体房屋格局修旧如旧的基础上,通过内饰和软装的搭配,让昔日的上海里弄经历了新旧交替的时代蝶变。
     
48884.jpeg





  ▼民宿入口处
     
48884.jpeg





  改造后的渝舍印象由两栋楼组成,设计过程从整合的角度梳理了文化、自然、建筑之间的关系。以入口处以折叠巡回的青砖引入,为空间的公共与私密提供了过渡。参考北方的四合院和上海小院的特点,设计师大刀阔斧,在寸土寸金的上海市中心辟出一处院落,解决了建筑间的孤立状态,使客房、前厅大堂和咖啡厅视觉上遥相呼应,院落的引入集中体现了传统建筑的造园思想。▼民宿院落
     
48884.jpeg





  大片窗户和钢板组成干干净净的冷色基调,与透出的暖黄光形成对比、正如渝舍印象的经营模式:用酒店式的管理方法,民宿的人文情怀去经营。这里有书籍、音乐、咖啡和茶,懒懒地坐在舒服的沙发上,发呆、看书、聊天,坐上一下午。▼前厅大堂和咖啡厅遥相呼应
     
48884.jpeg





  ▼咖啡厅
     
48884.jpeg





  民宿客房在朝南的主楼,楼内空间功能分区布局巧妙,恰到好处。中庭,将楼道空间与露台以及后院全部打通,达到视线与空间的最大程度的开放。玻璃天窗保证了客房公共区域的采光需求,一改老旧房屋的昏暗,铜质和实木相结合的楼梯承上启下。阳光照进天窗,辗转映射在二楼白墙,透过挑空的中庭玻璃栈道照射到一楼水磨石地面,整个空间一气呵成,显得更加充沛明亮。▼前厅接待处
     
48884.jpeg





  ▼民宿中庭
     
48884.jpeg





   
     
48884.jpeg





   
     
48884.jpeg





  ▼客房
     
48884.jpeg





  ▼每个房间都有自己的风格和故事
     
48884.jpeg





   
     
48884.jpeg





   
     
48884.jpeg





  设施:开放式洗浴空间、休闲会客区等。楼上是休息区域,将工作休闲与休息区分开,保证了客人的私密性。楼顶的一扇电动斜顶天窗,提供广阔清晰的视野,白天采光深度大而均匀,夜晚躺在床上仿佛身处一座天空之城,伸手即够得到天上的星星。
     
48884.jpeg





   
     
48884.jpeg





   
     
48884.jpeg





  ▼电动斜顶天窗提供良好的视野和采光
     
48884.jpeg





  ▼电动斜顶天窗提供良好的视野和采光
     
48884.jpeg





   
     
48884.jpeg





  ▼休息区域设于楼上
     
48884.jpeg





   
     
48884.jpeg





   
     
48884.jpeg





  ▼客房-淳
     
48884.jpeg





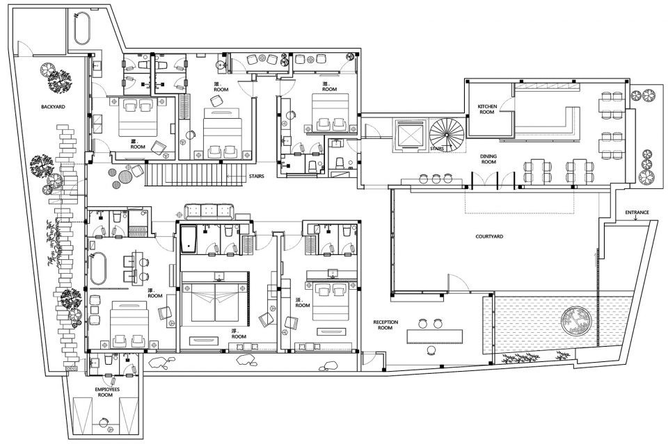
  ▼二层平面图
     
48884.jpeg





  ▼二层平面图
     
48884.jpeg





  ▼三层平面图
     
48884.jpeg





  ▼立面图
     
48884.jpeg





   
     
48884.jpeg





  项目名称:渝舍印象酒店项目地点:中国上海市复兴东路439号设计单位:上海本哲建筑设计有限公司建筑面积:678㎡主案建筑师:蒋华健设计时间:2017.04-2017.06施工时间:2017.06-2018.02平面设计:本哲建筑设计摄影:©是然建筑摄影,金选民
AI文本分析中……
AI色彩命名中……

序赞Ai时刻等待着你的命令!~

与Ai对话形式持续执行相关Ai智能体任务。

woco5252020-3-21 19:27:35
有点意思!{:5_223:}
您需要登录后才可以回帖 登录 | 注册序赞号

快速回复 返回顶部 返回列表