“退休夫妻”移居茶树林,打造300m²的新家



厚厚的绿色几乎掩没了屋顶,
被自然环绕,与世隔绝。
生活的嘈杂在这里,
被安逸与沉思所代替。









这座房子位于墨尔本沿海城镇Barwon Heads,距离海滩仅有100米,由Lovell Burton設計。

假期里去过那么多地方,但你是否想过有一天会搬到那里?Alan和Toni将向往变为生活。Barwon Heads House曾经是一个度假屋,现在成为了他们老去的家







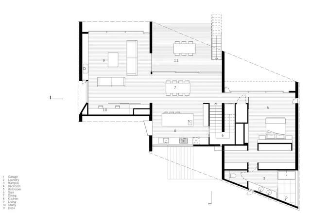
一楼设有开放式起居区,房屋的内部几乎全部采用温暖的木材。地板和天花板水平放置,在透视上让视野更加宽阔。而深色的横梁和框架构成画框,通过巨大窗户看到的一览无余的景观

起居室设有石色沙发,并配有壁炉和动物毛皮的地毯等触觉软装设计

























厨房面向一个巨大的玻璃面板,可以向后滑动,进入一个大型的户外阳台。花园里还拥有一个延伸到植被的狭窄游泳池





















在厨房区域,烹饪炊具隐藏在全高的储物柜中,而厨柜也巧妙地嵌入墙壁,让空间整洁宽敞了许多。
住户可以直接在石灰岩的中岛上用餐,另外黑色木纹长桌用来招待客人。






































主臥室和相邻的浴室同在上层,楼下设有一系列客房和一个娱乐室,孩子们可以在那里自由玩耍。










設計师尽可能避免使用钢材(因为在沿海条件下使用时具有腐蚀性),由瓦楞铝包层所代替。作为绿色建築,选用Reverse-lock反锁单板墙,可以调节建築物的热性能,在冬天更加保温。



















Lovell Burton面临的最大挑战之一 ,是将坚固外壳温暖柔软的场景空间结合在一起。两层住宅空间的建築包括一个直线体积和一个菱形体积,两种结构均采用黑色的氧化铝板屋顶,与周围绿色形成鲜明对比。




















Lovellburton由Joseph Lovell和Stephanie Burton创立,致力于通过社会,环境和财政方法塑造建築环境。
他们相信建築修复的潜力,可以激发和改善生活品质,创造容纳记忆的环境,与人们彼此建立联系。






“退休夫妻”移居茶树林,打造300m²的新家_“退休夫妻”移居茶树林,打造300m²的新家-1.jpg
“退休夫妻”移居茶树林,打造300m²的新家_“退休夫妻”移居茶树林,打造300m²的新家-2.jpg
“退休夫妻”移居茶树林,打造300m²的新家_“退休夫妻”移居茶树林,打造300m²的新家-3.jpg
“退休夫妻”移居茶树林,打造300m²的新家_“退休夫妻”移居茶树林,打造300m²的新家-5.jpg
“退休夫妻”移居茶树林,打造300m²的新家_“退休夫妻”移居茶树林,打造300m²的新家-6.jpg
“退休夫妻”移居茶树林,打造300m²的新家_“退休夫妻”移居茶树林,打造300m²的新家-7.jpg
“退休夫妻”移居茶树林,打造300m²的新家_“退休夫妻”移居茶树林,打造300m²的新家-10.jpg
“退休夫妻”移居茶树林,打造300m²的新家_“退休夫妻”移居茶树林,打造300m²的新家-11.jpg
“退休夫妻”移居茶树林,打造300m²的新家_“退休夫妻”移居茶树林,打造300m²的新家-12.jpg
“退休夫妻”移居茶树林,打造300m²的新家_“退休夫妻”移居茶树林,打造300m²的新家-13.jpg
“退休夫妻”移居茶树林,打造300m²的新家_“退休夫妻”移居茶树林,打造300m²的新家-15.jpg
“退休夫妻”移居茶树林,打造300m²的新家_“退休夫妻”移居茶树林,打造300m²的新家-16.jpg
“退休夫妻”移居茶树林,打造300m²的新家_“退休夫妻”移居茶树林,打造300m²的新家-17.jpg
“退休夫妻”移居茶树林,打造300m²的新家_“退休夫妻”移居茶树林,打造300m²的新家-18.jpg
“退休夫妻”移居茶树林,打造300m²的新家_“退休夫妻”移居茶树林,打造300m²的新家-19.jpg
“退休夫妻”移居茶树林,打造300m²的新家_“退休夫妻”移居茶树林,打造300m²的新家-20.jpg
“退休夫妻”移居茶树林,打造300m²的新家_“退休夫妻”移居茶树林,打造300m²的新家-21.jpg
“退休夫妻”移居茶树林,打造300m²的新家_“退休夫妻”移居茶树林,打造300m²的新家-22.jpg
“退休夫妻”移居茶树林,打造300m²的新家_“退休夫妻”移居茶树林,打造300m²的新家-24.jpg
“退休夫妻”移居茶树林,打造300m²的新家_“退休夫妻”移居茶树林,打造300m²的新家-25.jpg
“退休夫妻”移居茶树林,打造300m²的新家_“退休夫妻”移居茶树林,打造300m²的新家-26.jpg
“退休夫妻”移居茶树林,打造300m²的新家_“退休夫妻”移居茶树林,打造300m²的新家-27.jpg
“退休夫妻”移居茶树林,打造300m²的新家_“退休夫妻”移居茶树林,打造300m²的新家-28.jpg
“退休夫妻”移居茶树林,打造300m²的新家_“退休夫妻”移居茶树林,打造300m²的新家-29.jpg
“退休夫妻”移居茶树林,打造300m²的新家_“退休夫妻”移居茶树林,打造300m²的新家-30.jpg
“退休夫妻”移居茶树林,打造300m²的新家_“退休夫妻”移居茶树林,打造300m²的新家-31.jpg
“退休夫妻”移居茶树林,打造300m²的新家_“退休夫妻”移居茶树林,打造300m²的新家-32.jpg
“退休夫妻”移居茶树林,打造300m²的新家_“退休夫妻”移居茶树林,打造300m²的新家-33.jpg
“退休夫妻”移居茶树林,打造300m²的新家_“退休夫妻”移居茶树林,打造300m²的新家-34.jpg
“退休夫妻”移居茶树林,打造300m²的新家_“退休夫妻”移居茶树林,打造300m²的新家-35.jpg
“退休夫妻”移居茶树林,打造300m²的新家_“退休夫妻”移居茶树林,打造300m²的新家-36.jpg
“退休夫妻”移居茶树林,打造300m²的新家_“退休夫妻”移居茶树林,打造300m²的新家-37.jpg
AI文本分析中……
AI色彩命名中……

序赞Ai时刻等待着你的命令!~

与Ai对话形式持续执行相关Ai智能体任务。

暂时没有评论,你回一个呗!~

您需要登录后才可以回帖 登录 | 注册序赞号

快速回复 返回顶部 返回列表