Estúdio Cláudio Resmini | 巴西顶級湖畔三层別墅空间 案例
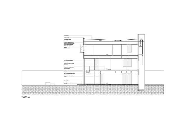
建于80年代,在混合结构,950 m²住宅空间被组织成三层,亲密之间的分布区域和服务在湖上水平,社会领域在街上水平在三楼和私人区域,包含5个套房。这个平面呈三角形,是悬空的,在结构上独立于房子的其他部分,也以金属型材和明显砖块的闭合结构为标志。2017年,由于缺乏维护,住宅空间退化,需要进行密集的干预。一旦我们参观了这处房产,我们立刻就会认同它的形式和概念。

我们立即定义,考虑到建築无可争议的力量,干预应该揭示建築的原始設計,并使其适应现在的时代。延伸到湖面的地板是干预力度更大的地方。所有的墙壁都被拆除,厨房、餐廳、起居空间,除了一个玩具图书馆,完全整合在一起。

洗衣房和一套员工套房与这条人行道分开。该区域的基本前提是通过平整延伸到新泳池区域的地板,加强与湖的联系。新泳池区域的部分框架通过一个木制平台和一个桌子形状的花园,在这里,草和不同高度的花盆之间的象限交替出现。

一个带烧烤架的美食空间被布置在厨房和泳池之间,并被框在一个混凝土盒子里。同样的盒子在装有冰箱的厨房里重复折叠。在这两个盒子中安装了四个滑动玻璃板,可以打开,让空间保持完整的整体。在社交通道中设置了一个大的弯曲墙,它与楼梯相切,并通向中庭,中庭通向社交区域和悬浮花园。在二楼的干预是准时的,因为尸体的替换,由木材,白色,延伸到两层之间的空隙。

为了增强卫生间的椭圆形体量,我们在橱柜区创建了一个涂层,通过与另一端的木板形成对比,模拟了一个大的木质立方体,而另一端的木板则容纳了吧台。所有的栏杆保护和护栏都被玻璃板取代,以保持装配設計和体积测量。维持体外容积测量的同时,注意以尽可能少的侵入性的方式恢复。所有的混凝土体块都被恢复,大的三角形体块被强化(突出)棱柱形,内衬和外墙被涂上白色。这个决定加强了黑色玻璃窗户的线性度,假设其形状在磁带上。

为了抵消这种线性,增加了一个面具,黑色的金属结构,它的功能像一个卤水,从而过滤早晨的太阳在其温暖的时期。关于最初的项目,建築师塞尔吉奥·帕拉达(Sergio Parada)评论道:“矩形的几何形体构成了东面的大部分空间,可以看到湖。

该项目预计,公众道路使用者的建设不会妨碍湖泊的景观。微观的内部气候,通过与花园的宏伟的空虚创造,使住宅空间的所有环境的整合成为可能。彩色金属结构和自由形式的混凝土定义了建築的設計和美學。”

































































位置:巴西巴西利亚
名称:South lake House
负责建築师:Claudio Resmini, Bruno Amaral
面积:1200.0 m2
项目年份: 2018
摄影师:Evelyn Muller
Estúdio Cláudio Resmini | 巴西顶級湖畔三层別墅空间 案例_Estúdio Cláudio Resmini | 巴西顶級湖畔三层別墅空间 案例-1.jpg
Estúdio Cláudio Resmini | 巴西顶級湖畔三层別墅空间 案例_Estúdio Cláudio Resmini | 巴西顶級湖畔三层別墅空间 案例-2.jpg
Estúdio Cláudio Resmini | 巴西顶級湖畔三层別墅空间 案例_Estúdio Cláudio Resmini | 巴西顶級湖畔三层別墅空间 案例-3.jpg
Estúdio Cláudio Resmini | 巴西顶級湖畔三层別墅空间 案例_Estúdio Cláudio Resmini | 巴西顶級湖畔三层別墅空间 案例-4.jpg
Estúdio Cláudio Resmini | 巴西顶級湖畔三层別墅空间 案例_Estúdio Cláudio Resmini | 巴西顶級湖畔三层別墅空间 案例-5.jpg
Estúdio Cláudio Resmini | 巴西顶級湖畔三层別墅空间 案例_Estúdio Cláudio Resmini | 巴西顶級湖畔三层別墅空间 案例-6.jpg
Estúdio Cláudio Resmini | 巴西顶級湖畔三层別墅空间 案例_Estúdio Cláudio Resmini | 巴西顶級湖畔三层別墅空间 案例-7.jpg
Estúdio Cláudio Resmini | 巴西顶級湖畔三层別墅空间 案例_Estúdio Cláudio Resmini | 巴西顶級湖畔三层別墅空间 案例-8.jpg
Estúdio Cláudio Resmini | 巴西顶級湖畔三层別墅空间 案例_Estúdio Cláudio Resmini | 巴西顶級湖畔三层別墅空间 案例-9.jpg
Estúdio Cláudio Resmini | 巴西顶級湖畔三层別墅空间 案例_Estúdio Cláudio Resmini | 巴西顶級湖畔三层別墅空间 案例-10.jpg
Estúdio Cláudio Resmini | 巴西顶級湖畔三层別墅空间 案例_Estúdio Cláudio Resmini | 巴西顶級湖畔三层別墅空间 案例-11.jpg
Estúdio Cláudio Resmini | 巴西顶級湖畔三层別墅空间 案例_Estúdio Cláudio Resmini | 巴西顶級湖畔三层別墅空间 案例-12.jpg
Estúdio Cláudio Resmini | 巴西顶級湖畔三层別墅空间 案例_Estúdio Cláudio Resmini | 巴西顶級湖畔三层別墅空间 案例-13.jpg
Estúdio Cláudio Resmini | 巴西顶級湖畔三层別墅空间 案例_Estúdio Cláudio Resmini | 巴西顶級湖畔三层別墅空间 案例-14.jpg
Estúdio Cláudio Resmini | 巴西顶級湖畔三层別墅空间 案例_Estúdio Cláudio Resmini | 巴西顶級湖畔三层別墅空间 案例-15.jpg
Estúdio Cláudio Resmini | 巴西顶級湖畔三层別墅空间 案例_Estúdio Cláudio Resmini | 巴西顶級湖畔三层別墅空间 案例-16.jpg
Estúdio Cláudio Resmini | 巴西顶級湖畔三层別墅空间 案例_Estúdio Cláudio Resmini | 巴西顶級湖畔三层別墅空间 案例-17.jpg
Estúdio Cláudio Resmini | 巴西顶級湖畔三层別墅空间 案例_Estúdio Cláudio Resmini | 巴西顶級湖畔三层別墅空间 案例-18.jpg
Estúdio Cláudio Resmini | 巴西顶級湖畔三层別墅空间 案例_Estúdio Cláudio Resmini | 巴西顶級湖畔三层別墅空间 案例-19.jpg
Estúdio Cláudio Resmini | 巴西顶級湖畔三层別墅空间 案例_Estúdio Cláudio Resmini | 巴西顶級湖畔三层別墅空间 案例-20.jpg
Estúdio Cláudio Resmini | 巴西顶級湖畔三层別墅空间 案例_Estúdio Cláudio Resmini | 巴西顶級湖畔三层別墅空间 案例-21.jpg
Estúdio Cláudio Resmini | 巴西顶級湖畔三层別墅空间 案例_Estúdio Cláudio Resmini | 巴西顶級湖畔三层別墅空间 案例-22.jpg
Estúdio Cláudio Resmini | 巴西顶級湖畔三层別墅空间 案例_Estúdio Cláudio Resmini | 巴西顶級湖畔三层別墅空间 案例-23.jpg
Estúdio Cláudio Resmini | 巴西顶級湖畔三层別墅空间 案例_Estúdio Cláudio Resmini | 巴西顶級湖畔三层別墅空间 案例-24.jpg
Estúdio Cláudio Resmini | 巴西顶級湖畔三层別墅空间 案例_Estúdio Cláudio Resmini | 巴西顶級湖畔三层別墅空间 案例-25.jpg
Estúdio Cláudio Resmini | 巴西顶級湖畔三层別墅空间 案例_Estúdio Cláudio Resmini | 巴西顶級湖畔三层別墅空间 案例-26.jpg
Estúdio Cláudio Resmini | 巴西顶級湖畔三层別墅空间 案例_Estúdio Cláudio Resmini | 巴西顶級湖畔三层別墅空间 案例-27.jpg
Estúdio Cláudio Resmini | 巴西顶級湖畔三层別墅空间 案例_Estúdio Cláudio Resmini | 巴西顶級湖畔三层別墅空间 案例-28.jpg
Estúdio Cláudio Resmini | 巴西顶級湖畔三层別墅空间 案例_Estúdio Cláudio Resmini | 巴西顶級湖畔三层別墅空间 案例-29.jpg
Estúdio Cláudio Resmini | 巴西顶級湖畔三层別墅空间 案例_Estúdio Cláudio Resmini | 巴西顶級湖畔三层別墅空间 案例-30.jpg
Estúdio Cláudio Resmini | 巴西顶級湖畔三层別墅空间 案例_Estúdio Cláudio Resmini | 巴西顶級湖畔三层別墅空间 案例-31.jpg
Estúdio Cláudio Resmini | 巴西顶級湖畔三层別墅空间 案例_Estúdio Cláudio Resmini | 巴西顶級湖畔三层別墅空间 案例-32.jpg
Estúdio Cláudio Resmini | 巴西顶級湖畔三层別墅空间 案例_Estúdio Cláudio Resmini | 巴西顶級湖畔三层別墅空间 案例-33.jpg
Estúdio Cláudio Resmini | 巴西顶級湖畔三层別墅空间 案例_Estúdio Cláudio Resmini | 巴西顶級湖畔三层別墅空间 案例-34.jpg
Estúdio Cláudio Resmini | 巴西顶級湖畔三层別墅空间 案例_Estúdio Cláudio Resmini | 巴西顶級湖畔三层別墅空间 案例-35.jpg
Estúdio Cláudio Resmini | 巴西顶級湖畔三层別墅空间 案例_Estúdio Cláudio Resmini | 巴西顶級湖畔三层別墅空间 案例-36.jpg
Estúdio Cláudio Resmini | 巴西顶級湖畔三层別墅空间 案例_Estúdio Cláudio Resmini | 巴西顶級湖畔三层別墅空间 案例-37.jpg
Estúdio Cláudio Resmini | 巴西顶級湖畔三层別墅空间 案例_Estúdio Cláudio Resmini | 巴西顶級湖畔三层別墅空间 案例-38.jpg
Estúdio Cláudio Resmini | 巴西顶級湖畔三层別墅空间 案例_Estúdio Cláudio Resmini | 巴西顶級湖畔三层別墅空间 案例-39.jpg
Estúdio Cláudio Resmini | 巴西顶級湖畔三层別墅空间 案例_Estúdio Cláudio Resmini | 巴西顶級湖畔三层別墅空间 案例-40.jpg
Estúdio Cláudio Resmini | 巴西顶級湖畔三层別墅空间 案例_Estúdio Cláudio Resmini | 巴西顶級湖畔三层別墅空间 案例-41.jpg
Estúdio Cláudio Resmini | 巴西顶級湖畔三层別墅空间 案例_Estúdio Cláudio Resmini | 巴西顶級湖畔三层別墅空间 案例-42.jpg
Estúdio Cláudio Resmini | 巴西顶級湖畔三层別墅空间 案例_Estúdio Cláudio Resmini | 巴西顶級湖畔三层別墅空间 案例-43.jpg
Estúdio Cláudio Resmini | 巴西顶級湖畔三层別墅空间 案例_Estúdio Cláudio Resmini | 巴西顶級湖畔三层別墅空间 案例-44.jpg
Estúdio Cláudio Resmini | 巴西顶級湖畔三层別墅空间 案例_Estúdio Cláudio Resmini | 巴西顶級湖畔三层別墅空间 案例-45.jpg
Estúdio Cláudio Resmini | 巴西顶級湖畔三层別墅空间 案例_Estúdio Cláudio Resmini | 巴西顶級湖畔三层別墅空间 案例-46.jpg
Estúdio Cláudio Resmini | 巴西顶級湖畔三层別墅空间 案例_Estúdio Cláudio Resmini | 巴西顶級湖畔三层別墅空间 案例-47.jpg
Estúdio Cláudio Resmini | 巴西顶級湖畔三层別墅空间 案例_Estúdio Cláudio Resmini | 巴西顶級湖畔三层別墅空间 案例-48.jpg
Estúdio Cláudio Resmini | 巴西顶級湖畔三层別墅空间 案例_Estúdio Cláudio Resmini | 巴西顶級湖畔三层別墅空间 案例-49.jpg
Estúdio Cláudio Resmini | 巴西顶級湖畔三层別墅空间 案例_Estúdio Cláudio Resmini | 巴西顶級湖畔三层別墅空间 案例-50.jpg
Estúdio Cláudio Resmini | 巴西顶級湖畔三层別墅空间 案例_Estúdio Cláudio Resmini | 巴西顶級湖畔三层別墅空间 案例-51.jpg
Estúdio Cláudio Resmini | 巴西顶級湖畔三层別墅空间 案例_Estúdio Cláudio Resmini | 巴西顶級湖畔三层別墅空间 案例-52.jpg
Estúdio Cláudio Resmini | 巴西顶級湖畔三层別墅空间 案例_Estúdio Cláudio Resmini | 巴西顶級湖畔三层別墅空间 案例-53.jpg
Estúdio Cláudio Resmini | 巴西顶級湖畔三层別墅空间 案例_Estúdio Cláudio Resmini | 巴西顶級湖畔三层別墅空间 案例-54.jpg
Estúdio Cláudio Resmini | 巴西顶級湖畔三层別墅空间 案例_Estúdio Cláudio Resmini | 巴西顶級湖畔三层別墅空间 案例-55.jpg
Estúdio Cláudio Resmini | 巴西顶級湖畔三层別墅空间 案例_Estúdio Cláudio Resmini | 巴西顶級湖畔三层別墅空间 案例-56.jpg
Estúdio Cláudio Resmini | 巴西顶級湖畔三层別墅空间 案例_Estúdio Cláudio Resmini | 巴西顶級湖畔三层別墅空间 案例-57.jpg
Estúdio Cláudio Resmini | 巴西顶級湖畔三层別墅空间 案例_Estúdio Cláudio Resmini | 巴西顶級湖畔三层別墅空间 案例-58.jpg
Estúdio Cláudio Resmini | 巴西顶級湖畔三层別墅空间 案例_Estúdio Cláudio Resmini | 巴西顶級湖畔三层別墅空间 案例-59.jpg
Estúdio Cláudio Resmini | 巴西顶級湖畔三层別墅空间 案例_Estúdio Cláudio Resmini | 巴西顶級湖畔三层別墅空间 案例-60.jpg
Estúdio Cláudio Resmini | 巴西顶級湖畔三层別墅空间 案例_Estúdio Cláudio Resmini | 巴西顶級湖畔三层別墅空间 案例-61.jpg
Estúdio Cláudio Resmini | 巴西顶級湖畔三层別墅空间 案例_Estúdio Cláudio Resmini | 巴西顶級湖畔三层別墅空间 案例-62.jpg
Estúdio Cláudio Resmini | 巴西顶級湖畔三层別墅空间 案例_Estúdio Cláudio Resmini | 巴西顶級湖畔三层別墅空间 案例-63.jpg
Estúdio Cláudio Resmini | 巴西顶級湖畔三层別墅空间 案例_Estúdio Cláudio Resmini | 巴西顶級湖畔三层別墅空间 案例-64.jpg
Estúdio Cláudio Resmini | 巴西顶級湖畔三层別墅空间 案例_Estúdio Cláudio Resmini | 巴西顶級湖畔三层別墅空间 案例-65.jpg
Estúdio Cláudio Resmini | 巴西顶級湖畔三层別墅空间 案例_Estúdio Cláudio Resmini | 巴西顶級湖畔三层別墅空间 案例-66.jpg
Estúdio Cláudio Resmini | 巴西顶級湖畔三层別墅空间 案例_Estúdio Cláudio Resmini | 巴西顶級湖畔三层別墅空间 案例-67.jpg
Estúdio Cláudio Resmini | 巴西顶級湖畔三层別墅空间 案例_Estúdio Cláudio Resmini | 巴西顶級湖畔三层別墅空间 案例-68.jpg
Estúdio Cláudio Resmini | 巴西顶級湖畔三层別墅空间 案例_Estúdio Cláudio Resmini | 巴西顶級湖畔三层別墅空间 案例-69.jpg
Estúdio Cláudio Resmini | 巴西顶級湖畔三层別墅空间 案例_Estúdio Cláudio Resmini | 巴西顶級湖畔三层別墅空间 案例-70.jpg
Estúdio Cláudio Resmini | 巴西顶級湖畔三层別墅空间 案例_Estúdio Cláudio Resmini | 巴西顶級湖畔三层別墅空间 案例-71.jpg
AI文本分析中……
AI色彩命名中……

序赞Ai时刻等待着你的命令!~

与Ai对话形式持续执行相关Ai智能体任务。

暂时没有评论,你回一个呗!~

您需要登录后才可以回帖 登录 | 注册序赞号

快速回复 返回顶部 返回列表