涠洲岛青骊拂晓酒店 設計空间设计案例 / 间外建築工作室
在青骊完成一年后, 我们工作室开始了二期的工作。在这一年涠洲岛变化不少: 游人渐多, 公共设施在完善。岛上民宿市场如雨后春笋, 百花齐放,在一片火热的市场里, 要保持冷静与独立思考, 在接地气和创新的博弈之间取得平衡是做民宿的一大挑战。 岛上的民宿大多为改造原有建築, 先天施工缺陷与原建築平面不合理是設計师要克服的难题。

青骊的新店名字叫青骊拂晓, 拂晓意思指黎明, 或接近日出的意思。这个名字来由于项目地可以看到日出与海景。 项目位于涠洲岛东南角的下坑村,这里人口较少, 民宿只有几个, 特点是风景优美,海岸线长, 在村与沙滩之间还有一片小树林, 叫这个村的海景更为独特。


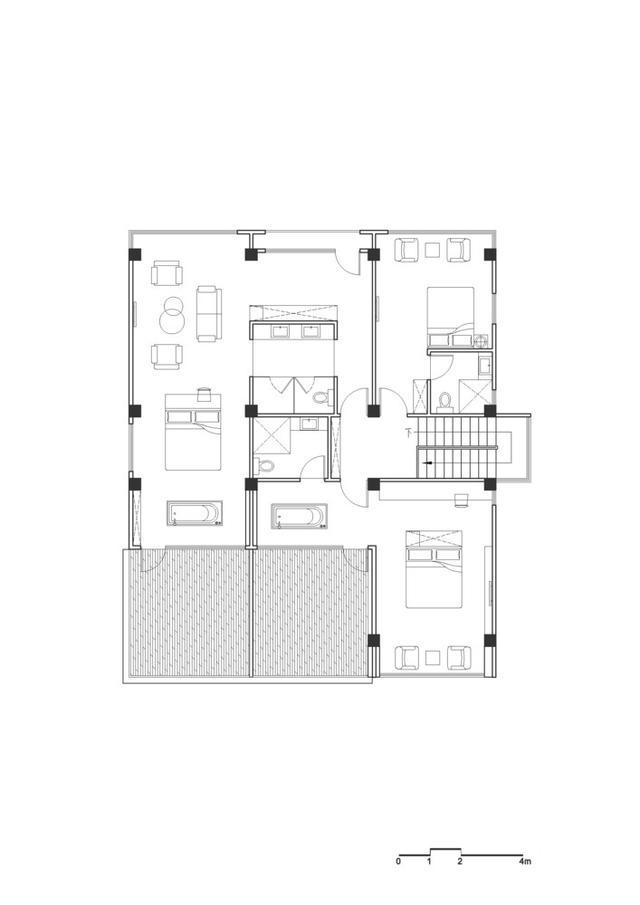
基地由四层的主建築和一层的副楼组成, 两个建築形成L形的布局, 围合一个院子, 主要入口在东南角的公路上。主楼建築平面尺寸为 11.8m x 14.5m , 副楼平面为 6m x 12m. 在业主接手之前已经是民宿. 这次业主对我们的要求: 如何在原有平面作出优化, 在原有复杂外立面做减法, 还有处理建築与景观的关系。这几个平常的要求只是对建築师考验非常大, 因为一方面要符合当地的改造规范(例如基地范围, 总高度和面积等), 另一方面要在有限经费里打造出房子的新面孔。

在建築的原平面上,过道位于建築的正中间, 房间平均大小接近。基于海景的考虑, 我们把一些朝东(看海)的房间与朝西的打通, 形成一个更好通风与景观的空间, 从而增加房间看海的比例。 在一层的空间, 主要为接待与休息区, 朝海面我们設計了落地玻璃推拉门, 和室外平台连成一起, 室外平台比基地马路高出约一米的空间, 这里户外活动更具私密性。酒店餐廳在主楼的边上,和主建築围合出半开放的院子,餐廳的正面也同样有推拉门, 客人们可以在树下享受美食, 也同时观看游泳池与草原风景。 餐廳屋顶是观景平台可以远眺海景。院子的中间区为游泳池, 绿色马赛克的設計与地面更为协调。

在建築外形上我们考虑了几样材料, 包括水洗石或水磨石等。 由于房子本身要抵抗高温与多雨的海岛气候, 所以容易修复与耐用的材料是最终选择, 外墙我们使用了真石喷漆与菠萝格木板, 颜色选择了墨绿色, 因为基地周边全是珊瑚石围墙与树林, 我们希望建築像从地面生长出来的绿洲一样,眺望着大海的变化。在大堂与房间里, 每一层用了不同颜色的水磨石地面。


拂晓是日出, 代表了新一天的开始, 我们期待客人每天在这里享受不一样心情的海岛慢生活。























建築师 间外建築工作室
地址 涠洲岛下坑村,北海,广西,中国
类别 酒店
主持建築师 冯国安, 王素玉
設計团队 步东梅
建築面积 760.0 m2
项目年份 2018
摄影师 白羽
涠洲岛青骊拂晓酒店 設計空间设计案例  /  间外建築工作室_涠洲岛青骊拂晓酒店 設計空间设计案例  /  间外建築工作室-1.jpg
涠洲岛青骊拂晓酒店 設計空间设计案例  /  间外建築工作室_涠洲岛青骊拂晓酒店 設計空间设计案例  /  间外建築工作室-2.jpg
涠洲岛青骊拂晓酒店 設計空间设计案例  /  间外建築工作室_涠洲岛青骊拂晓酒店 設計空间设计案例  /  间外建築工作室-3.jpg
涠洲岛青骊拂晓酒店 設計空间设计案例  /  间外建築工作室_涠洲岛青骊拂晓酒店 設計空间设计案例  /  间外建築工作室-4.jpg
涠洲岛青骊拂晓酒店 設計空间设计案例  /  间外建築工作室_涠洲岛青骊拂晓酒店 設計空间设计案例  /  间外建築工作室-5.jpg
涠洲岛青骊拂晓酒店 設計空间设计案例  /  间外建築工作室_涠洲岛青骊拂晓酒店 設計空间设计案例  /  间外建築工作室-6.jpg
涠洲岛青骊拂晓酒店 設計空间设计案例  /  间外建築工作室_涠洲岛青骊拂晓酒店 設計空间设计案例  /  间外建築工作室-7.jpg
涠洲岛青骊拂晓酒店 設計空间设计案例  /  间外建築工作室_涠洲岛青骊拂晓酒店 設計空间设计案例  /  间外建築工作室-8.jpg
涠洲岛青骊拂晓酒店 設計空间设计案例  /  间外建築工作室_涠洲岛青骊拂晓酒店 設計空间设计案例  /  间外建築工作室-9.jpg
涠洲岛青骊拂晓酒店 設計空间设计案例  /  间外建築工作室_涠洲岛青骊拂晓酒店 設計空间设计案例  /  间外建築工作室-10.jpg
涠洲岛青骊拂晓酒店 設計空间设计案例  /  间外建築工作室_涠洲岛青骊拂晓酒店 設計空间设计案例  /  间外建築工作室-11.jpg
涠洲岛青骊拂晓酒店 設計空间设计案例  /  间外建築工作室_涠洲岛青骊拂晓酒店 設計空间设计案例  /  间外建築工作室-12.jpg
涠洲岛青骊拂晓酒店 設計空间设计案例  /  间外建築工作室_涠洲岛青骊拂晓酒店 設計空间设计案例  /  间外建築工作室-13.jpg
涠洲岛青骊拂晓酒店 設計空间设计案例  /  间外建築工作室_涠洲岛青骊拂晓酒店 設計空间设计案例  /  间外建築工作室-14.jpg
涠洲岛青骊拂晓酒店 設計空间设计案例  /  间外建築工作室_涠洲岛青骊拂晓酒店 設計空间设计案例  /  间外建築工作室-15.jpg
涠洲岛青骊拂晓酒店 設計空间设计案例  /  间外建築工作室_涠洲岛青骊拂晓酒店 設計空间设计案例  /  间外建築工作室-16.jpg
涠洲岛青骊拂晓酒店 設計空间设计案例  /  间外建築工作室_涠洲岛青骊拂晓酒店 設計空间设计案例  /  间外建築工作室-17.jpg
涠洲岛青骊拂晓酒店 設計空间设计案例  /  间外建築工作室_涠洲岛青骊拂晓酒店 設計空间设计案例  /  间外建築工作室-18.jpg
涠洲岛青骊拂晓酒店 設計空间设计案例  /  间外建築工作室_涠洲岛青骊拂晓酒店 設計空间设计案例  /  间外建築工作室-19.jpg
涠洲岛青骊拂晓酒店 設計空间设计案例  /  间外建築工作室_涠洲岛青骊拂晓酒店 設計空间设计案例  /  间外建築工作室-20.jpg
涠洲岛青骊拂晓酒店 設計空间设计案例  /  间外建築工作室_涠洲岛青骊拂晓酒店 設計空间设计案例  /  间外建築工作室-21.jpg
涠洲岛青骊拂晓酒店 設計空间设计案例  /  间外建築工作室_涠洲岛青骊拂晓酒店 設計空间设计案例  /  间外建築工作室-22.jpg
涠洲岛青骊拂晓酒店 設計空间设计案例  /  间外建築工作室_涠洲岛青骊拂晓酒店 設計空间设计案例  /  间外建築工作室-23.jpg
涠洲岛青骊拂晓酒店 設計空间设计案例  /  间外建築工作室_涠洲岛青骊拂晓酒店 設計空间设计案例  /  间外建築工作室-24.jpg
涠洲岛青骊拂晓酒店 設計空间设计案例  /  间外建築工作室_涠洲岛青骊拂晓酒店 設計空间设计案例  /  间外建築工作室-25.jpg
涠洲岛青骊拂晓酒店 設計空间设计案例  /  间外建築工作室_涠洲岛青骊拂晓酒店 設計空间设计案例  /  间外建築工作室-26.jpg
涠洲岛青骊拂晓酒店 設計空间设计案例  /  间外建築工作室_涠洲岛青骊拂晓酒店 設計空间设计案例  /  间外建築工作室-27.jpg
涠洲岛青骊拂晓酒店 設計空间设计案例  /  间外建築工作室_涠洲岛青骊拂晓酒店 設計空间设计案例  /  间外建築工作室-28.jpg
涠洲岛青骊拂晓酒店 設計空间设计案例  /  间外建築工作室_涠洲岛青骊拂晓酒店 設計空间设计案例  /  间外建築工作室-29.jpg
涠洲岛青骊拂晓酒店 設計空间设计案例  /  间外建築工作室_涠洲岛青骊拂晓酒店 設計空间设计案例  /  间外建築工作室-30.jpg
AI文本分析中……
AI色彩命名中……

序赞Ai时刻等待着你的命令!~

与Ai对话形式持续执行相关Ai智能体任务。

暂时没有评论,你回一个呗!~

您需要登录后才可以回帖 登录 | 注册序赞号

快速回复 返回顶部 返回列表