正清和雅 · 禅院|九华山莲花小镇
正清和雅 · 禅院|九华山莲花小镇-1.jpg

九华山莲花小镇——正清和雅禅院

MOMA Lotus Resort, Jiuhua Mountain

中国,安徽

Anhui, China

“一座山,一尊佛,一方院”

初见九华,是个阴天,只见山形清晰,但不巍峨,略失望。忽而云开天晴,才见山外有山,层峦叠嶂,不负“东南第一山”之美誉。

地藏铜像就这样静静的站立在山峰之下,与山、水、村庄一起,经受着岁月的洗礼。唐开元末年,金地藏卓锡九华,1600多年以来,地藏道场声名远播,九华的奇峰峻岭与佛教文化融为一体,独具風格。
正清和雅 · 禅院|九华山莲花小镇-2.jpg

正清和雅 · 禅院|九华山莲花小镇-3.jpg

莲花小镇,就坐落在地藏铜像旁。说是小镇,更像一个村落,以自然肌理为脉络,建築三五成群,形成聚落,既是旅客登山礼佛后的驿站,也可聚三五好友在青山绿水间煮酒夜话。
正清和雅 · 禅院|九华山莲花小镇-4.jpg

正清和雅禅院是莲花小镇的第一个建築,也是小镇的村口。“一棵树、一口井、一只打鸣的公鸡”这是中国人脑海中的“村口”画面,也是思乡情愫中强烈的暗示。我们给予小镇的是充分的广场、广阔的水面、一口钟和那棵树。
正清和雅 · 禅院|九华山莲花小镇-5.jpg

正清和雅 · 禅院|九华山莲花小镇-6.jpg

正清和雅 · 禅院|九华山莲花小镇-7.jpg

◎体块分析图

建築并没有选择碎片的方式来消隐在自然之中,而是以完整的形态放置于水面上,似将四时之景纳入院中,又似院中岁月溢出山水天地,空间由人所创,禅境由心而生。
正清和雅 · 禅院|九华山莲花小镇-8.jpg

正清和雅 · 禅院|九华山莲花小镇-9.jpg

禅院就以这样一个拙朴姿态展现出来,然后交由漫长的岁月去填补,就像村庄、佛像的出现,是不同时期人类在自然中活动行为的结果,最终又必然与自然融为一体。
正清和雅 · 禅院|九华山莲花小镇-10.jpg

正清和雅 · 禅院|九华山莲花小镇-11.jpg

建築的屋顶是一个回旋向上的坡屋面,最高点定义在场地的东南角,同时也解决了局部两层的功能设定。
正清和雅 · 禅院|九华山莲花小镇-12.jpg

◎模型照片
正清和雅 · 禅院|九华山莲花小镇-13.jpg

◎功能分析

完整的屋面之下,功能被进行了切割和完全的拉开,庭院嵌入其间,内外界限随之模糊,院内院外皆为水面,倒影中,可由外见禅院生活,又可由内见山中风雨。
正清和雅 · 禅院|九华山莲花小镇-14.jpg

正清和雅 · 禅院|九华山莲花小镇-15.jpg

正清和雅 · 禅院|九华山莲花小镇-16.jpg

建築采用两种色调,灰色与木色,灰色在外木色在内,饰面砖以空斗砖墙的形制进行拼贴,其上覆以小青瓦屋面,于乡村的界面中,显拙朴与沉稳。

内院则采用大量的木色铝板和玻璃,在阳光的作用下格外温暖。内外的材质在檐口之下进行过渡,吊顶的木色延伸至室外,倒影于水中,灰砖则转入走廊及小院四周,流动与延伸是空间的主题。
正清和雅 · 禅院|九华山莲花小镇-17.jpg

小院的打磨依靠工人的智慧,陡峭的屋面可以更好的营造光影,但对于固定小青瓦是个不小的挑战,天井采用进口菠萝格原木,打造徽居中典型的四水归堂,建造过程,仿佛是一场古今的对话。
正清和雅 · 禅院|九华山莲花小镇-18.jpg

正清和雅 · 禅院|九华山莲花小镇-19.jpg

正清和雅 · 禅院|九华山莲花小镇-20.jpg

建築的基本功能是一个酒店,房间设置在南面及东面,可望山敬佛。二层的部分,将房间横向布置,从而产生了一条内走道,天窗也自然而然出现,顶部的采光延伸到楼梯的位置,形成方形矩形若干窗井,随着光线的变化,这是一个意外生动的空间。
正清和雅 · 禅院|九华山莲花小镇-21.jpg

正清和雅 · 禅院|九华山莲花小镇-22.jpg

正清和雅 · 禅院|九华山莲花小镇-23.jpg

正清和雅 · 禅院|九华山莲花小镇-24.jpg

正清和雅 · 禅院|九华山莲花小镇-25.jpg

结语

_

建築给予场所、使用者去定义功能。正清和雅禅院,取自于中国禅和茶的文化,空间的创作在高度、广度上给予足够的尺度,将自然山水人文穿插进建築,而放松生活状态的停留或是感悟禅理哲学的升华,则交由不同的使用者去体验,小镇的意义也正在于此。
正清和雅 · 禅院|九华山莲花小镇-26.jpg

技术图纸

_
正清和雅 · 禅院|九华山莲花小镇-27.jpg

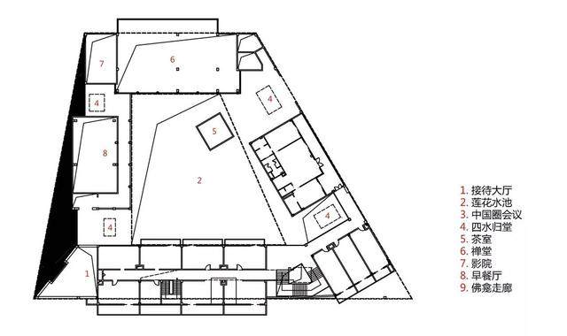
◎一层平面图
正清和雅 · 禅院|九华山莲花小镇-28.jpg

◎二层平面图
正清和雅 · 禅院|九华山莲花小镇-29.jpg

正清和雅 · 禅院|九华山莲花小镇-30.jpg

◎节点大样

工程档案

项目名称丨正清和雅· 禅院

项目位置丨中国安徽·池州·九华山

项目性质丨酒店

业主单位丨当代置业(安徽)

业主团队丨涂礼军 魏世兴 王起 盛进

建築設計丨上海日清建築設計有限公司

設計总负责丨宋照青 熊星

設計团队丨林琼华 魏一鸣 王军 章志武

建築施工图設計 | 安徽地平线建築設計有限公司

景观設計丨广州山水比德景观設計有限公司

场景空间設計丨PAL設計事务所

软装設計丨HDESIGN(旋木尚艺)

建築面积丨2850㎡

竣工时间丨2019.5

建築摄影丨是然建築摄影 Schran Images&张骑麟
AI文本分析中……
AI色彩命名中……

序赞Ai时刻等待着你的命令!~

与Ai对话形式持续执行相关Ai智能体任务。

暂时没有评论,你回一个呗!~

您需要登录后才可以回帖 登录 | 注册序赞号

快速回复 返回顶部 返回列表