长沙弘阳RSUN時光里销售中心 | BENJAI彬占建築
该销售中心位于长沙市优质开发区“天心区”。它靠近城市的主要交通道路(新韶路与刘家冲路交汇处),也是未来社区的主要入口之一。建築設計和场景空间設計均来自Benjai Architecture。
长沙弘阳RSUN時光里销售中心 | BENJAI彬占建築-1.jpg

长沙弘阳RSUN時光里销售中心 | BENJAI彬占建築-2.jpg

土地使用面积有限,高度差复杂,宽度窄,体积小:该建築距离城市道路仅23米,因此很难形成仪式空间序列。此外,周围环境与站点本身之间的高度差接近3米,我们需要一个明智的策略来解决一系列问题:站点与城市道路之间的高度差,未来零售空间的可达性,坡度要求消防通道和救援地点,避免使用地下车库入口。此外,面向城市道路西侧的主立面宽度仅为16米,仅占沿线项目总宽度的12%街。更糟糕的是,北部和南部的两侧都有大型高层建築。销售办公室的整体规模太小,难以引起注意,很难获得良好的宣传。
长沙弘阳RSUN時光里销售中心 | BENJAI彬占建築-3.jpg

长沙弘阳RSUN時光里销售中心 | BENJAI彬占建築-4.jpg

长沙弘阳RSUN時光里销售中心 | BENJAI彬占建築-5.jpg

长沙弘阳RSUN時光里销售中心 | BENJAI彬占建築-6.jpg

建築設計:一系列折叠板象征着“跳舞的起重机”的轮廓,将住宅空间和地下室的入口以及拱廊相互结合,使展示面沿街道的长度加倍,并增强了城市的能见度接口。我们不想使用太多的材料来破坏纯設計,因此主要材料被控制在以下三种中:冲孔铝面板,超白钢化玻璃和仿铜不锈钢(幕墙垂直面板)。另一方面,铝板的搭接采用平锁方法,不仅保证了接缝的清洁整齐,而且避免了由接缝法引起的胶色差。
长沙弘阳RSUN時光里销售中心 | BENJAI彬占建築-7.jpg

长沙弘阳RSUN時光里销售中心 | BENJAI彬占建築-8.jpg

长沙弘阳RSUN時光里销售中心 | BENJAI彬占建築-9.jpg

长沙弘阳RSUN時光里销售中心 | BENJAI彬占建築-10.jpg

长沙弘阳RSUN時光里销售中心 | BENJAI彬占建築-11.jpg

长沙弘阳RSUN時光里销售中心 | BENJAI彬占建築-12.jpg

长沙弘阳RSUN時光里销售中心 | BENJAI彬占建築-13.jpg

长沙弘阳RSUN時光里销售中心 | BENJAI彬占建築-14.jpg

长沙弘阳RSUN時光里销售中心 | BENJAI彬占建築-15.jpg

场景空间設計:场景空间設計延续了“跳舞的起重机”的主题,整体感觉年轻,精致,轻松。困难在于如何在有限的区域内容纳所有功能需求,以及如何组织流线型并同时制作一些有趣的空间。为了确保一楼展廳的宽敞空间,我们将各层放倒,留下了三层楼高的空间,并创造了一个宽敞的入口空间。
长沙弘阳RSUN時光里销售中心 | BENJAI彬占建築-16.jpg

长沙弘阳RSUN時光里销售中心 | BENJAI彬占建築-17.jpg

长沙弘阳RSUN時光里销售中心 | BENJAI彬占建築-18.jpg

景观設計:景观設計也延续了三角形的元素,并创建一个连续的,但是无法通过与建築空间一起被看见。该项目的多层结构形成了一个隐隐约约的空间,当人们在空间中徘徊时会带来新的发现。空间的可能性在运动中不断出现。我们提取湘江的文化意象,例如大洲,小岛,船只,沙子,起重机,河流等,然后将其形式演变为景观元素。
长沙弘阳RSUN時光里销售中心 | BENJAI彬占建築-19.jpg

长沙弘阳RSUN時光里销售中心 | BENJAI彬占建築-20.jpg

项目分析图:
长沙弘阳RSUN時光里销售中心 | BENJAI彬占建築-21.jpg

长沙弘阳RSUN時光里销售中心 | BENJAI彬占建築-22.jpg

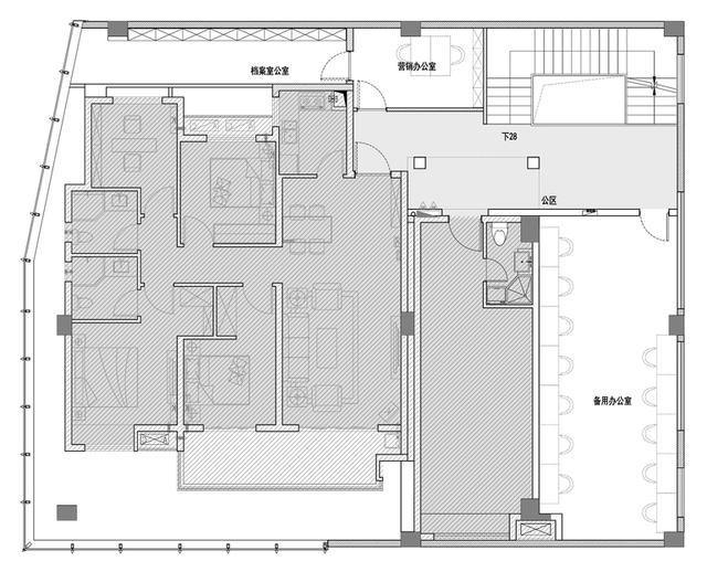
平面图:
长沙弘阳RSUN時光里销售中心 | BENJAI彬占建築-23.jpg

长沙弘阳RSUN時光里销售中心 | BENJAI彬占建築-24.jpg

长沙弘阳RSUN時光里销售中心 | BENJAI彬占建築-25.jpg

长沙弘阳RSUN時光里销售中心 | BENJAI彬占建築-26.jpg

项目空间信息:

空间名称:弘阳RSUN時光里销售中心

空间类型:商業空间、销售中心、售楼处

空间地址:长沙市天心区新韶路与刘家冲路交汇处

設計公司:BENJAI彬占建築

景观設計:L&A設計

建築面积:792平方米

建築主材:铝板、冲孔铝板、镀金不锈钢、木饰面、超白钢化玻璃、大理石

建築摄影:曾江河、邱日培
AI文本分析中……
AI色彩命名中……

序赞Ai时刻等待着你的命令!~

与Ai对话形式持续执行相关Ai智能体任务。

暂时没有评论,你回一个呗!~

您需要登录后才可以回帖 登录 | 注册序赞号

快速回复 返回顶部 返回列表