入门小白请大家提提宝贵意见
1573204156260197_968.jpg

1573204156262370_463.jpg
AI文本分析中……
AI色彩命名中……

序赞Ai时刻等待着你的命令!~

与Ai对话形式持续执行相关Ai智能体任务。

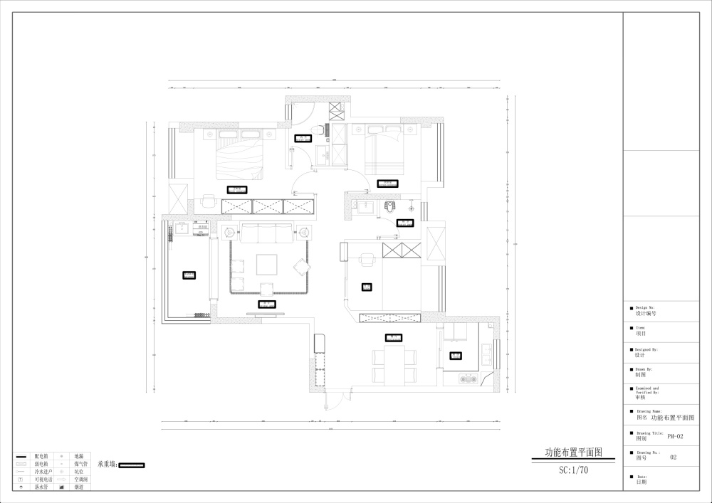
魏园158511671602019-11-29 16:58:48
这个方案 主要问题是进门就是餐厅,厨房和餐厅功能区都太小,整体开放性空间联动性太弱。
建议取消外卫,中间小房间上提,原有餐厅改成西厨,餐厅上提占原有中间房间部分空间,这样客餐厅+西厨区这些开放性功能区就打开了,也缓解了中厨空间太小的尴尬。
您需要登录后才可以回帖 登录 | 注册序赞号

快速回复 返回顶部 返回列表