与壮美山脉卧谈:奥地利莫尔生活度假村疗养中心
与壮美山脉卧谈:奥地利莫尔生活度假村疗养中心-1.jpg

项目位于奥地利蒂罗尔令人惊叹的自然景观中,noa*建築事务所为莫尔生活度假村設計了一座新的疗养中心,项目是对传统疗养类型的当代诠释。受周围绝美的自然环境的启发,近期的项目旨在建立建築与周围环境形态、文化和历史之间的直接对话。
与壮美山脉卧谈:奥地利莫尔生活度假村疗养中心-2.jpg

与壮美山脉卧谈:奥地利莫尔生活度假村疗养中心-3.jpg

新的疗养中心位于现有酒店下方的一个缓坡上,占地600平方米,拥有ehrwalder盆地和雄伟的楚格峰(Zugspitze)的壮美景色。建築一层包括一个私人休息室,大厅和小吃吧,温泉和风景桑拿区;以及更衣室和淋浴间。在上层,客人可以享用10个对称的“放松亭”,在其外部,户外区延伸至自然景观中。该空间以一个巨大的游泳池和六个俯瞰水面的“岛箱”为主要特色,为完全地放松和沉浸于自然中提供了完美的场所。
与壮美山脉卧谈:奥地利莫尔生活度假村疗养中心-4.jpg

与壮美山脉卧谈:奥地利莫尔生活度假村疗养中心-5.jpg

与壮美山脉卧谈:奥地利莫尔生活度假村疗养中心-6.jpg

与壮美山脉卧谈:奥地利莫尔生活度假村疗养中心-7.jpg

“雄伟壮丽的山脉为我们的实践提供了平台。总体而言,楚格峰(Zugspitze)的壮美、力量,尤其是其复杂的形体给予了我们灵感,并且是我们项目的主要角色。新的疗养中心被设想为一个剧院座位,拥有欣赏这一奇特杰作的理想场地。客人被隐逸于一个放松的环境中,与周围的自然环境和谐共生。我们的挑战是创造一种能够扩展和增强空间感知的结构,从而创造出能激发客人新的情感的有助于恢复健康的空间。”noa*的合伙人,建築師Christian Rottensteiner解释道。
与壮美山脉卧谈:奥地利莫尔生活度假村疗养中心-8.jpg

与壮美山脉卧谈:奥地利莫尔生活度假村疗养中心-9.jpg

建築的结构由简单的混凝土盒玻璃立方体组成,这些立方体渐渐进入了大地的轮廓。通过使用大量玻璃,当窗户映出周围群山的景观时,設計带来了一种具有反射效果的元素;这种透明性也产生了一种建築表达,即在视觉上将内部环境与壮阔的户外空间联系起来。
与壮美山脉卧谈:奥地利莫尔生活度假村疗养中心-10.jpg

与壮美山脉卧谈:奥地利莫尔生活度假村疗养中心-11.jpg

与壮美山脉卧谈:奥地利莫尔生活度假村疗养中心-12.jpg

与壮美山脉卧谈:奥地利莫尔生活度假村疗养中心-13.jpg

与壮美山脉卧谈:奥地利莫尔生活度假村疗养中心-14.jpg

与壮美山脉卧谈:奥地利莫尔生活度假村疗养中心-15.jpg

与壮美山脉卧谈:奥地利莫尔生活度假村疗养中心-16.jpg

与壮美山脉卧谈:奥地利莫尔生活度假村疗养中心-17.jpg

与壮美山脉卧谈:奥地利莫尔生活度假村疗养中心-18.jpg

项目图纸
与壮美山脉卧谈:奥地利莫尔生活度假村疗养中心-19.jpg

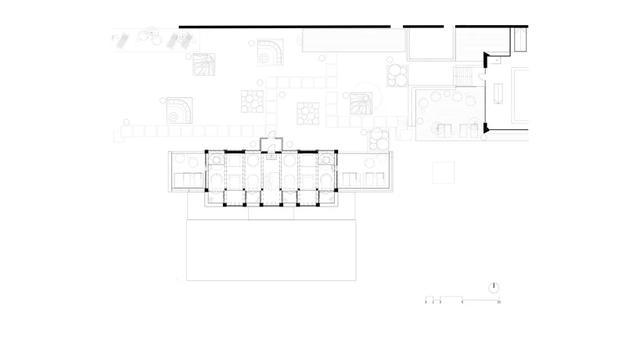
▲ 平面图
与壮美山脉卧谈:奥地利莫尔生活度假村疗养中心-20.jpg

▲ 平面图
与壮美山脉卧谈:奥地利莫尔生活度假村疗养中心-21.jpg

▲ 平面图
与壮美山脉卧谈:奥地利莫尔生活度假村疗养中心-22.jpg

▲ 剖面图
与壮美山脉卧谈:奥地利莫尔生活度假村疗养中心-23.jpg

▲ 剖面图
与壮美山脉卧谈:奥地利莫尔生活度假村疗养中心-24.jpg

▲ 剖面图

项目信息:

项目名称:莫尔生活度假村疗养中心

项目类型:健康疗养

地址:lermoos,蒂罗尔州,奥地利

建築設計:noa* network of architecture

场景空间設計:noa* network of architecture

表面积:4628.48 ft2 (430 m2)

建造开始年份:2018年4月

完工年份:2018年10月

摄影師:Alex Filz
AI文本分析中……
AI色彩命名中……

序赞Ai时刻等待着你的命令!~

与Ai对话形式持续执行相关Ai智能体任务。

暂时没有评论,你回一个呗!~

您需要登录后才可以回帖 登录 | 注册序赞号

快速回复 返回顶部 返回列表