以色列住宅48th FL MIDTOWN PENTHOUSE | Raz Melamed Architect



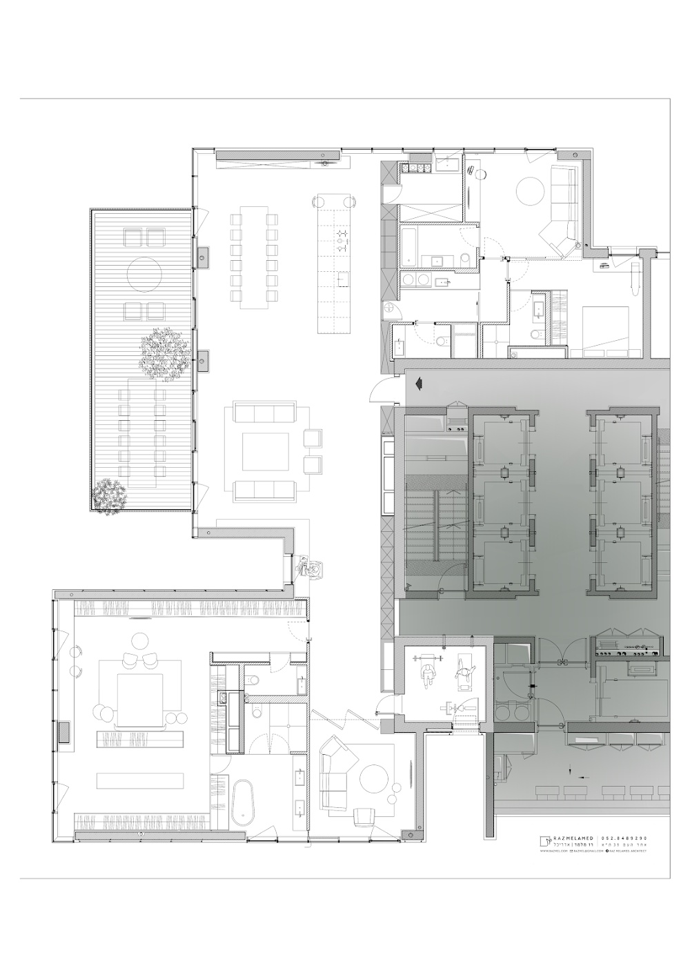
    在特拉维夫市中心的一座塔楼 48 层,一套 400 平方米的公寓专为四个人设计,有两个独立的空间,用于托管和生活,其中交织着令人印象深刻的艺术收藏品。
vsszan20932030526161.jpg
vsszan20932030526162.jpg

    此外,这个家族拥有大量令人印象深刻的艺术收藏品,它们也必须放置在不同的空间之间,以精确平衡。所有这一切都发生在一个几乎没有内墙的玻璃封闭公寓里。25 米的覆层墙轻轻切开缺口,营造出一种屏幕从天花板漏到地板的感觉。这要归功于纵向“运行”的照明条和通风条。在家庭角落的入口处,垂直于它的是两个带有白色铝框的玻璃表面,这些玻璃表面形成了独立的区域,它们之间有眼神接触,自然和谐地连续。
vsszan20932030526163.jpg
vsszan20932030526164.jpg

    家庭角落本身有一张明亮的沙发和两张小圆桌。与石墙平行的是一个6米长的不锈钢岛台,从中冒出火焰和水龙头头。住宿本身设有带轻铁椅子的木制餐桌。客厅里有一张沙发、两把轻便的扶手椅和小圆桌。

    两侧的招待空间以敞开的铁质百叶窗结束,用于展示部分藏品。

    所有这些令人叹为观止的美景都面向位于特拉维夫塔楼和天际线之间接缝处的朝西阳台。
vsszan20932030526165.jpg
vsszan20932030526166.jpg

    故事的意义远不止眼前一亮 墙的功能不仅体现在它所创造的分隔上。它也可以用作挂在上面的艺术图片的完美背景。打开折叠门露出一个设备齐全的不锈钢厨房,当关闭时,空间的整体外观保持纯净干净。黑幕背后的一瞥,显露出一个白色而神奇的“无菌空间”。一侧是厨房的白色靠背,用作储物空间和厨房的所有“嘈杂”功能,另一侧有一个白色金属书柜,书柜后面是一张属于一个人的床的靠背可直接通往浴室的套房。
vsszan20932030526167.jpg
vsszan20932030526168.jpg

    接下来,还有另一间带私人浴室、受保护空间、健身房、客用卫生间和服务室的套房。主人套房在公寓的对面,在家庭角落的后面。
vsszan20932030526169.jpg
vsszan209320305261610.jpg
vsszan209320305261611.jpg
vsszan209320305261612.jpg
vsszan209320305261613.jpg
vsszan209320305261614.jpg
vsszan209320305261615.jpg
vsszan209320305261616.jpg

    产品规格表

    (例如,千思板 – 外墙覆层 – Meteon 系列,按此顺序)

    1.贵宾厨房

    2.维特拉家具

    3.Living Divani 家具

    4.BD巴塞罗那家具

    5.Bolia家具及配件

    6.Vipp家具及配饰

    7.Agape

      项目名称:48th FL MIDTOWN PENTHOUSE

      项目地点:以色列特拉维夫

      毕业年份:2019

AI文本分析中……
AI色彩命名中……

序赞Ai时刻等待着你的命令!~

与Ai对话形式持续执行相关Ai智能体任务。

暂时没有评论,你回一个呗!~

您需要登录后才可以回帖 登录 | 注册序赞号

快速回复 返回顶部 返回列表