20年的老房子,重新装修,小客厅怎么布置才合理?
11.jpg
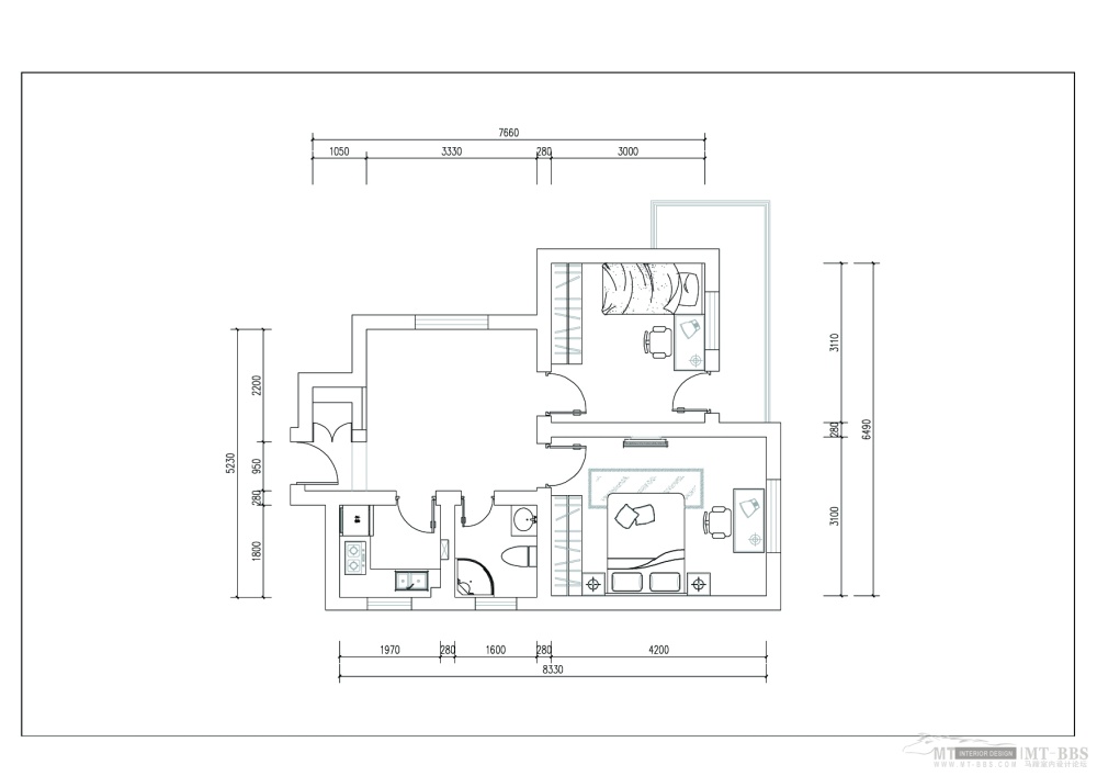
20年的老房子,重新装修,小客厅怎么布置才合理?一对中年夫妻和一个老人住
AI文本分析中……
AI色彩命名中……

序赞Ai时刻等待着你的命令!~

与Ai对话形式持续执行相关Ai智能体任务。

顺水江流2011-4-18 15:42:41
做过类似的结构,把上边那个卧室墙敲掉,原客厅做餐厅,扩出来的卧室做客厅 ,希望能帮到你
yyyy86882011-4-18 15:55:41
一对中年夫妻和一个老人住
yyyy86882011-4-18 15:57:13
那个墙有280厚,是不是承重墙?砖混结构的老房子
wuyingzb2013-7-12 16:43:37
这么小的房子,就直接做个餐厅得了,需要两房间根本没地方做客厅了
您需要登录后才可以回帖 登录 | 注册序赞号

快速回复 返回顶部 返回列表