法式中古 | 星杰国际 | 2024 | 中国上海
vsszan192894300101351.gif


SIN GO DESIGN
法式中古  &  案例赏析



本案业主是一对年轻夫妇,男主是金融精英,行事不拘小节;女主是文艺范小公主,生活小资审美独特。
他们希望新家,既有生活的舒适,更能容纳对美与艺术的追求。

vsszan192894300101354.png

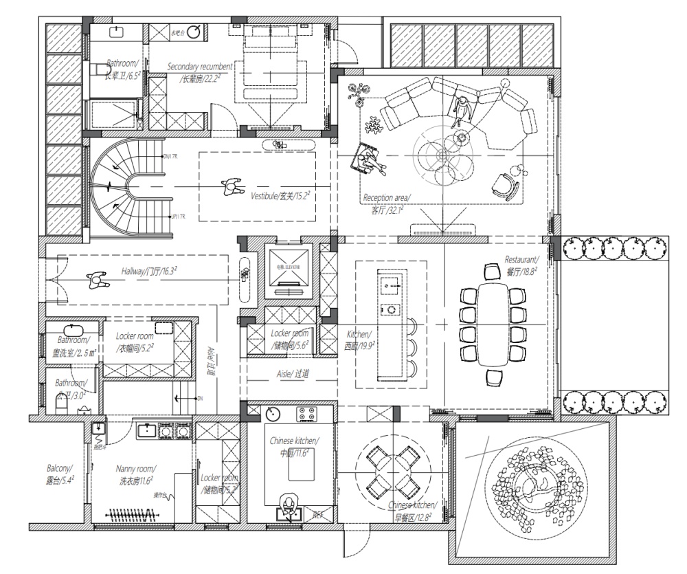
平面方案(部分)


原始户型
1、缺少入户门厅区域。
2、整屋储物空问不足。

设计优化
1、隔出入户门厅与玄关的位置。
2、全屋增加储物空间。

vsszan192894300101355.png


在户型格局上,设计运用隔而不断的理念,将原本独立的空间融会贯通,隔而不断,创造出开放、延展的自由体验。

小众中古混搭风
中古风( Mid-century Modern Style )简称MCM,融合了包豪斯现代主义,有机建筑等和许多设计大师理念的精髓。虽然诞生于20世纪中期,但它却是实打实的现代风,而非古典风。

vsszan192894300101356.png


作为现代主义的发展和延续,中古风以其极简的理念,经典丰富的形式和复古的情怀,绽放夺目光彩,也成为近几年最受欢迎的风格之一。

vsszan192894300101357.png


本案用色大胆且沉稳,大地色、米色、棕色、以及高纯度暖调的原木色,奠定温暖的基调。石膏线、石材、铁艺,长虹玻璃,又赋予大House特有的底气。

vsszan192894300101358.png


装饰上运用优雅古典的法式石膏线条去装饰,搭配浓厚的色彩和线条的质感打造了小资的高级空间。
材质上,巧妙地在自然传统和现代工业之间找到一个完美的平衡,选用艺术涂料作为主调来设计,也采用藤编,麻布、纹理质感极强的原木等自然质感的材料,搭配中古风家具,营造出充满法式情调的空间感。

vsszan192894300101359.png


入户玄关一眼吸睛,原木纹理的玄关柜搭配抽象画,鲜明又沉稳的色调带来平静的自然复古质感。

vsszan1928943001013510.png
vsszan1928943001013511.png
vsszan1928943001013512.png
vsszan1928943001013513.png


客厅几乎没有电子产品,只回归原始的功能需求,壁炉带来的温暖感,个性十足的手型木椅,超大型的云朵吊灯,让空间张扬亦内敛。

vsszan1928943001013514.png


半开放式厨房通过吧台与餐厅产生了有趣的互动,在消除束缚感的同时,也使采光、通风及动线都得到最优解答。

vsszan1928943001013515.png
vsszan1928943001013516.png
vsszan1928943001013517.png
vsszan1928943001013518.png
vsszan1928943001013519.png


今天,别墅装修早已不只是对空间的装饰,更是对生活方式的升级。这样一个充满风情和个性的家,谁能不爱呢?

vsszan1928943001013520.png


面积:520㎡
风格:法式中古
楼盘:白金瀚宫

    • 转自:星杰国际设计
    • 图片©星杰国际设计
    • 编辑:序赞网
    • 阅读原文
    AI文本分析中……
    AI色彩命名中……

    序赞Ai时刻等待着你的命令!~

    与Ai对话形式持续执行相关Ai智能体任务。

    syhgdesign2024-12-2 01:10:29
    感谢楼主辛苦分享   
    FatUncle2025-4-16 14:08:28
    感谢分享!感谢分享!
    zhiyizhou2025-8-28 11:18:19
    感谢楼主分享,辛苦楼主了
    您需要登录后才可以回帖 登录 | 注册序赞号

    快速回复 返回顶部 返回列表